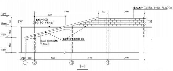
5层砌体结构学生公寓楼结构CAD施工图纸(条形基础)
- 发布时间:2022-11-12
- 评论次数:0
- 浏览次数:0
- 文件大小:0.28 MB
- 收藏次数:0
-
文件名称:
附件-995879888085699978855.zip
相关下载
- 砌体结构CAD施工图纸(单层条形基础).dwg
- 3层砌体结构民房结构图纸(砌体结构条形基础)
- 6层砖混结构公寓楼结构CAD施工图纸(条形基础)
- 国内上5层砌体宿舍楼结构CAD图纸(条形基础,筏形基础)
- 6层砌体结构条形基础住宅楼结构设计施工图纸
- 砌体结构条形基础福利院结构设计施工图纸
- 4层条形基础砌体结构住宅楼结构设计施工图纸
- 6层条形基础砌体结构住宅楼结构设计施工图纸
- 3层砌体结构别墅建筑结构CAD施工图纸(条形基础坡屋面)
- 5层砌体结构住宅楼结构施工图纸(墙下条形基础)
- 3层条形基础砌体结构别墅结构CAD施工图纸
- 6层条形基础砌体结构住宅楼结构CAD施工图纸(3栋)
- 3层坡屋面砌体结构住宅楼结构CAD施工图纸(条形基础)
- 6层条形基础砌体结构住宅楼结构CAD施工图纸
- 6层条形基础砌体结构住宅楼结构CAD施工图纸
- 6层条形基础砌体结构住宅楼结构CAD施工图纸
- 6层条形基础砌体结构住宅楼结构CAD施工图纸
- 3层条形基础砌体结构别墅结构CAD施工图纸(7度抗震)
- 2层条形基础砌体结构办公楼结构CAD施工图纸
- 两层条形基础砌体结构办公楼结构CAD施工图纸
全部评论
评论网友评论仅友表达个人看法,并不表明本站同意其观点,不得发布违反法律法规的内容!
