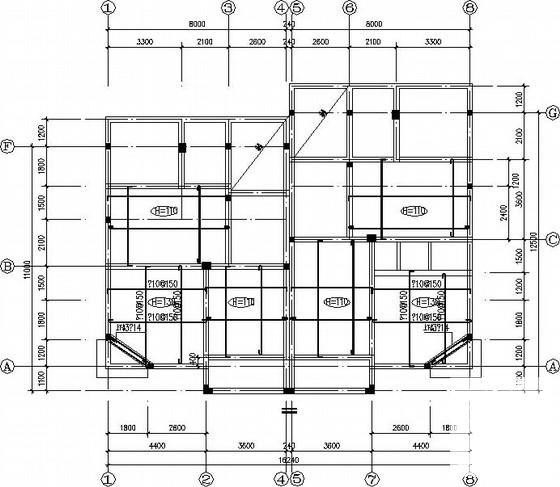
3层条形基础砌体结构别墅结构CAD施工图纸
- 发布时间:2022-11-12
- 评论次数:0
- 浏览次数:0
- 文件大小:0.54 MB
- 收藏次数:0
- 
								文件名称: 附件-995879596557655989856.zip 附件-995879596557655989856.zip
								相关下载
							
						- 3层砌体结构别墅建筑结构CAD施工图纸(条形基础坡屋面)
- 3层条形基础砌体结构别墅结构CAD施工图纸(7度抗震)
- 2层条形基础砌体结构别墅结构CAD施工图纸
- 4层砌体结构联排别墅结构CAD施工图纸(条形基础)
- 两层条形基础砌体结构别墅结构CAD施工图纸(建施)
- 两层条形基础砌体结构别墅结构CAD施工图纸(6度抗震)
- 2层条形基础砌体结构别墅结构CAD施工图纸(6度抗震)
- 3层砌体结构别墅建筑结构CAD施工图纸(条形基础坡屋面)
- 砌体结构别墅结构CAD施工图纸(2层条形基础)
- 砌体结构联排别墅结构设计CAD施工图纸(条形基础).dwg
- 砌体结构CAD施工图纸(单层条形基础).dwg
- 2层5套砌体混合别墅结构设计施工图纸(条形基础)
- 农村自建2层砖砌体别墅结构CAD施工图纸(条形基础)
- 3层砌体结构民房结构图纸(砌体结构条形基础)
- 4层砌体结构条形基础别墅结构CAD施工图纸(7度抗震)(平面布置图)
- 2层砌体结构别墅结构CAD施工图纸(墙下条形基础)(平面布置图)
- 6层砌体结构条形基础住宅楼结构设计施工图纸
- 砌体结构条形基础福利院结构设计施工图纸
- 4层条形基础砌体结构住宅楼结构设计施工图纸
- 6层条形基础砌体结构住宅楼结构设计施工图纸
全部评论
						
							评论网友评论仅友表达个人看法,并不表明本站同意其观点,不得发布违反法律法规的内容!
						
						
 
	              	 
	              	 
	              	