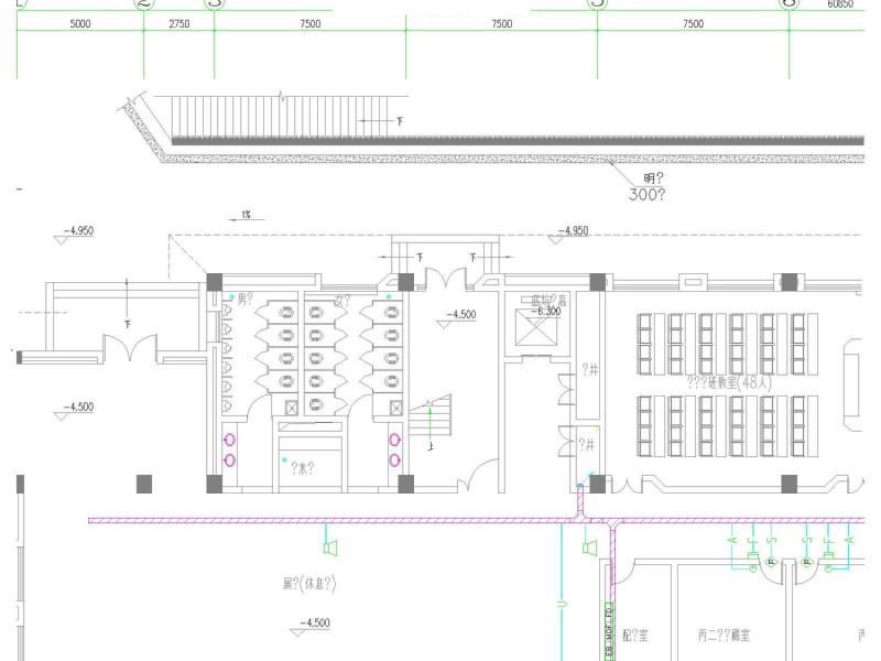
大学6层学院楼电气CAD施工图纸(设备布置图)
- 发布时间:2022-11-10
- 评论次数:0
- 浏览次数:0
- 文件大小:2.97 MB
- 收藏次数:0
-
文件名称:
附件-995855599877090700805.dwg
相关下载
- 知名大学材料学院电气CAD施工图纸
- 学院宿舍楼电气CAD施工图纸(防雷设备安装)
- 大学护理学院实验楼
- 学院综合教学楼电气图纸
- 桑拿宾馆设备布置图纸.
- 知名大学院系高层办公楼建筑施工CAD图纸(平面图)
- 5层大学学院楼建筑CAD施工图纸
- 集美大学5层师范学院教学楼建筑施工CAD图纸(混凝土框架)
- 学院教学楼电气设计
- 理工大学公路学院毕业设计方案CAD图纸(钢筋布置图)
- 大学城市学院景观设计CAD图纸
- 五星酒店信息机房电气CAD施工图纸(设备布置图)
- 大厦CDMA室内综合覆盖电气CAD施工图纸(设备布置图)()
- 学院宿舍楼电气施工图纸
- 学院6层教学楼电气施工图纸
- 完整的学院行政楼电气CAD施工图纸
- 大学西校区护理学院楼空调毕业设计方案
- 中国人民大学学院楼剧场结构设计
- 大学师范学院综合楼结构设计.pdf
- 泵房设计cad图纸和建筑结构电气图,设备平面布置图
全部评论
评论网友评论仅友表达个人看法,并不表明本站同意其观点,不得发布违反法律法规的内容!
