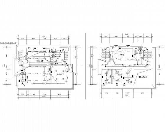
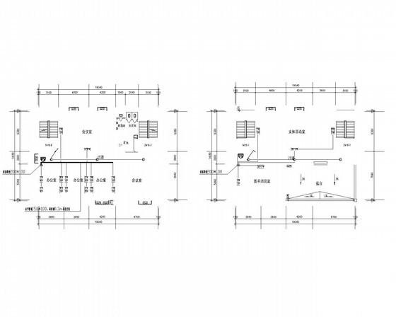
村民中心办公楼电气CAD施工图纸(甲级院设计)(背景音乐系统)
- 发布时间:2022-11-10
- 评论次数:0
- 浏览次数:0
- 文件大小:1.18 MB
- 收藏次数:0
- 
								文件名称: 附件-995855608770675788807.zip 附件-995855608770675788807.zip
								相关下载
							
						- 研发中心电气CAD施工图纸(甲级院设计)(综合布线系统)
- 9层办公楼电气CAD施工图纸(甲级院设计)(综合布线系统)
- 国际物流中心弱电系统图纸(甲级院)
- 监测中心办公楼电气全套CAD施工大样图191张(2016甲级院设计).dwg
- 市中心医院门诊大楼电气CAD施工图纸(甲级设计院)
- 11层商业中心项目电气CAD施工图纸(甲级设计院)
- 14层大型办公楼强电系统CAD施工图纸(甲级设计院)
- 研发中心电气CAD施工大样图(甲级院设计)
- 办公楼电气CAD施工图纸(甲级院设计)(控制原理图)
- 办公楼带餐厅电气CAD施工图纸(甲级院设计)
- 3层健身中心体育场电气初设图纸(甲级院设计)
- 文化中心体育馆电气全套图纸(甲级院设计).dwg
- 工业厂房电气CAD施工图纸(甲级院设计)
- 行政楼电气施工图纸(甲级院设计)
- 法院电气施工图纸(甲级院最新设计)
- 厂房电气CAD施工图纸(甲级院设计)
- 工业厂房电气CAD施工图纸(甲级院设计)
- 9层办公楼电气CAD施工大样图(甲级院设计)
- 办公楼电气CAD施工大样图(甲级院设计)
- 知名校区学生服务中心宿舍电气CAD施工图纸(甲级院)
全部评论
						
							评论网友评论仅友表达个人看法,并不表明本站同意其观点,不得发布违反法律法规的内容!
						
						
 
	              	 
	              	 
	              	