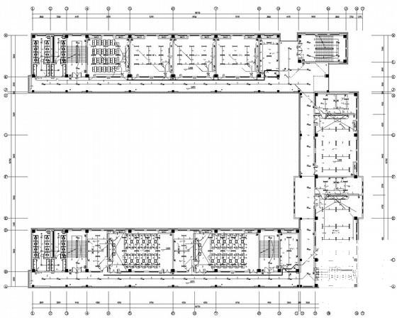
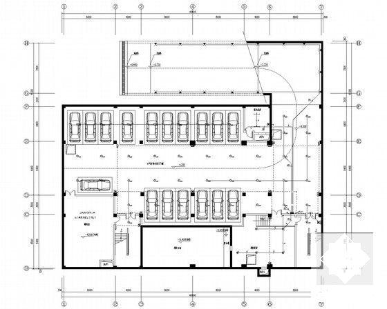
小学风雨操场、教学楼、科技楼及报告厅电气CAD施工图纸(人防)
- 发布时间:2022-11-04
- 评论次数:0
- 浏览次数:0
- 文件大小:4.62 MB
- 收藏次数:0
-
文件名称:
附件-995855877568757777567.rar
相关下载
- 4层小学风雨操场、教学楼、科技楼及报告厅电气施工CAD图纸(2015年7月完成设计)
- 小学报告厅、风雨操场建筑施工方案图纸(CAD)
- 小学4层哈佛红风格教学楼建筑CAD图纸(风雨操场)
- 2层小学结构布置图_教学楼_食堂_风雨操场
- 风雨操场电气CAD图纸
- 5层框架结构教学楼及风雨操场结构CAD施工图纸
- 多功能中学全套建筑施工图纸(多功能厅、风雨操场、教学楼)
- 3层小学食堂及风雨操场结构施工图纸
- 小学风雨操场及体育器材库结构施工大样图
- 市级多层小学整套规划设计施工图(教学楼、风雨操场等2015年CAD图纸)
- 小学教学楼、综合楼、风雨操场及食堂结构施工大样图(建筑施工大样图).dwg
- 5层框架结构教学楼及风雨操场结构CAD施工图纸(桩基础)
- 4层小学教学楼报告厅体育馆给排消防CAD施工图纸
- 4层小学教学楼报告厅体育馆给排消防CAD施工图纸
- 小学风雨操场建筑施工CAD图纸(卫生间详图)
- 5层小学建筑群风雨操场给排水消防CAD施工图纸
- 小学风雨操场建筑施工图纸cad平面图
- 两层框架结构小学风雨操场结构施工大样图
- 中学报告厅电气CAD图纸
- 小学教学楼电气
全部评论
评论网友评论仅友表达个人看法,并不表明本站同意其观点,不得发布违反法律法规的内容!
