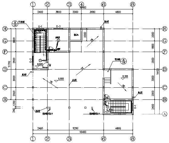
两层简约式别墅电气设计CAD施工图纸
- 发布时间:2022-11-01
- 评论次数:0
- 浏览次数:0
- 文件大小:0.18 MB
- 收藏次数:0
- 
								文件名称: 附件-995856670597555500689.rar 附件-995856670597555500689.rar
								相关下载
							
						- 两层简约式别墅电气CAD施工图纸()
- 2层简约式别墅建筑施工CAD图纸
- 2层框架结构简约式独栋别墅建筑施工CAD图纸
- 简约式景观门施工CAD详图纸
- 简约优雅新中式别墅庭院景观方案
- 2层简约风格农村别墅设计方案
- 两层别墅全套电气设计施工图纸
- 两层双拼别墅电气设计CAD施工图纸(防雷接地系统)
- 两层A型花园独立别墅电气设计CAD施工图纸.dwg
- 两层联体别墅电气设计CAD施工图纸.dwg
- 两层别墅电气设计CAD施工图纸.dwg
- 379平米两层别墅电气设计CAD施工图纸.dwg
- 两层小别墅电气施工图纸,含电气设计说明
- 两层别墅电气设计CAD施工图纸,共5张
- 两层瑞典式风格别墅建筑施工CAD图纸
- 精美简约的3层联排别墅建筑设计CAD图纸
- 3层简约山地别墅方案设计CAD初设图纸
- 简约欧式岗亭尺寸大样CAD图纸
- 别墅区两层别墅建筑图纸
- 现代简约景观木亭施工CAD详图纸
全部评论
						
							评论网友评论仅友表达个人看法,并不表明本站同意其观点,不得发布违反法律法规的内容!
						
						
 
	              	 
	              	 
	              	