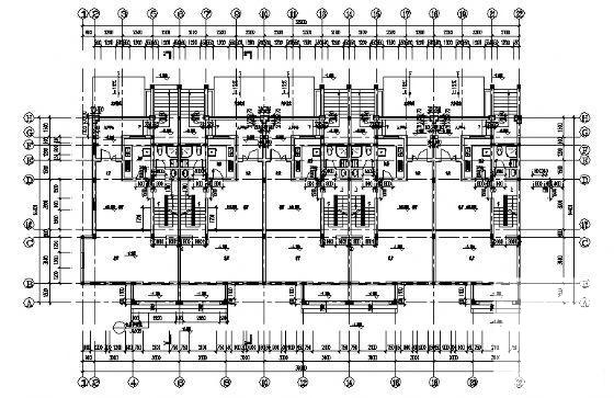
精美简约的3层联排别墅建筑设计CAD图纸
- 发布时间:2022-08-12
- 评论次数:0
- 浏览次数:0
- 文件大小:0.46 MB
- 收藏次数:0
-
文件名称:
附件-995898889090685957688.rar
相关下载
- 精美3层联排别墅建筑CAD图纸
- 精美联排别墅建筑CAD施工图纸
- 精美实用的3层联排别墅建筑CAD图纸
- 联排别墅CAD图纸
- 联排别墅户型分析
- 精美6层联排别墅建筑CAD施工图纸
- 精美的别墅建筑设计CAD图纸
- 精美的别墅建筑设计CAD图纸
- 精美的别墅建筑设计CAD图纸
- 精美详细的别墅建筑设计CAD图纸
- 联排别墅节点大样图纸
- 联排别墅建筑图纸
- 联排别墅建筑CAD图纸
- 联排别墅结构CAD图纸
- 联排别墅电气施工图纸.
- 联排别墅施工CAD图纸
- 3层中式联排别墅建筑施工CAD图纸(八联排)
- 3层联排式别墅建筑设计方案设计初设图纸
- 3层325平西班牙风格联排别墅建筑设计施工CAD图纸
- 精美实用的排屋建筑CAD施工图纸
全部评论
评论网友评论仅友表达个人看法,并不表明本站同意其观点,不得发布违反法律法规的内容!
