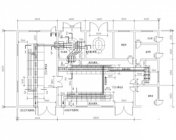
大型厂区变配电工程电气设计CAD施工图纸(平面布置图)
- 发布时间:2022-10-29
- 评论次数:0
- 浏览次数:0
- 文件大小:0.41 MB
- 收藏次数:0
- 
								文件名称: 附件-995857897657058957958.zip 附件-995857897657058957958.zip
								相关下载
							
						- 大型厂区弱电系统电气设计CAD施工图纸(系统及平面图)
- 大型厂区消防给水总平面图纸.dwg
- 大型厂区照明配电CAD施工图纸(电气设计说明)
- 特大型沼气工程CAD施工图纸,(喷灌系统)(平面布置图)
- 大型住宅小区变配电系统工程全套电气施工图纸
- 大型石化项目变配电工程CAD施工图纸80张
- 两层框架厂区工程结构CAD施工图纸(建施)(平面布置图)
- 国际大楼高低压变配电室消防改造工程平面布置图
- 工厂250kVA台变配电工程电气设计施工图纸
- 变配电室基础设计图纸平面布置图
- 厂区绿化设计平面
- 厂区扩建电气设计.dwg
- 大型厂区施工组织设计(梁柱节点)
- 大型地下室工程电气设计.dwg
- 变配电房平面CAD图纸
- 厂区消防泵房电气设计施工图纸
- 炼钢技术厂区电气设计CAD施工图纸
- 大型工业厂区中心详细规划CAD图纸
- 厂区路灯工程电气设计图纸,共5张
- 大型小区10KV变配电工程CAD施工图纸(系统图、大样图)
全部评论
						
							评论网友评论仅友表达个人看法,并不表明本站同意其观点,不得发布违反法律法规的内容!
						
						
 
	              	 
	              	 
	              	