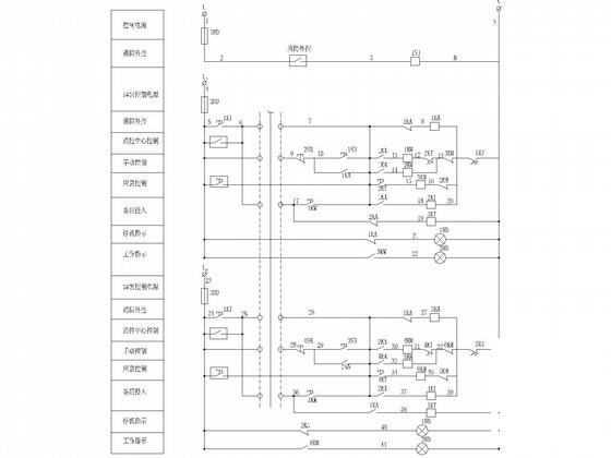
19层星级酒店电气设计CAD施工图纸
- 发布时间:2022-10-28
- 评论次数:0
- 浏览次数:0
- 文件大小:4.61 MB
- 收藏次数:0
- 
								文件名称: 附件-995856588785090887085.rar 附件-995856588785090887085.rar
								相关下载
							
						- 星级酒店电气设计要点.pdf
- 五星级酒店电气设计强电部分
- 一类高层四星级酒店电气设计CAD施工图纸
- 多层钢筋混凝土结构星级酒店电气设计CAD施工图纸
- 19层五星级酒店电气设计施工图纸
- 14层五星级酒店电气设计图纸.dwg
- 五星级酒店电气设计图纸.dwg
- 7层四星级酒店全套电气设计方案(36张)
- 五星级酒店电气设计方案.doc
- 星级酒店供配电系统图纸
- 星级酒店整套消防CAD图纸
- 五星级酒店水电设计
- 五星级酒店强电设计
- 16层经典五星级酒店强电系统电气设计CAD施工图纸
- 四星级酒店电气设计CAD施工图纸(消防联动控制系统)
- 星级酒店基坑围护工程施工图纸
- 五星级酒店室内泳池施工图纸
- 四星级酒店建筑CAD施工图纸
- 四星级酒店空调施工设计CAD图纸
- 高层星级酒店电气CAD施工图纸
全部评论
						
							评论网友评论仅友表达个人看法,并不表明本站同意其观点,不得发布违反法律法规的内容!
						
						
 
	              	 
	              	 
	              	