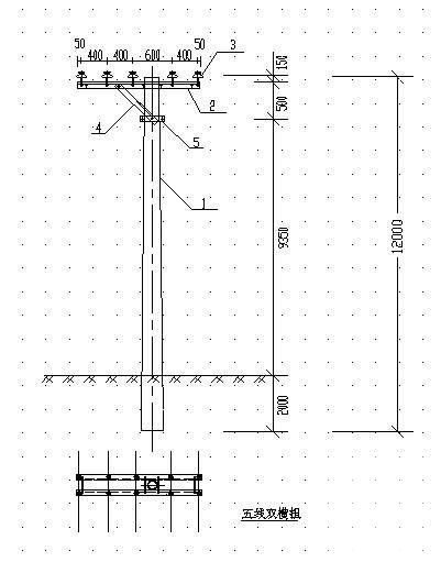
农网改造低压线路CAD图纸
- 发布时间:2022-10-17
- 评论次数:0
- 浏览次数:0
- 文件大小:3.66 MB
- 收藏次数:0
- 
								文件名称: 附件-995855869570850897867.rar 附件-995855869570850897867.rar
								相关下载
							
						- 城网改造低压进户线及计量保护安装CAD图纸
- 线路改造工程高压电缆布置竣工图纸
- 10KV配网工程电力线路敷设图纸.dwg
- 10KV配网工程典型设计电缆线路部分(3)
- 10KV配网工程典型设计电缆线路部分(2)
- 10KV配网工程典型设计电缆线路部分(1)
- 热网蒸汽管线改造安装施工方案(脱硫)
- 10KV农村电网配网改造工程竣工CAD图纸(架空线路)(10kv变配电系统)
- 室外高低压线路及道路照明施工图纸
- 630KVA变电所0.4KV低压一次线路CAD图纸
- 农房屋顶改造建筑设计施工图纸cad平面图
- 35KV变电站改造工程电气图纸(10kv线路)
- 油田煤粉炉烟气脱硫改造工程电气CAD图纸(电缆线路设计)
- 电厂翻车机改造线路工程CAD施工图纸.dwg
- 10KV农村电网配网改造工程全套竣工图纸
- 铁路扩能改造工程施工组织设计2007(线路长度25.5km)
- 110KV输电线路改造工程施工方案
- 35KV线路跨越铁路抗冰改造工程施工方案(型钢)
- 3层农居建筑CAD图纸
- 小康农居建筑CAD图纸
全部评论
						
							评论网友评论仅友表达个人看法,并不表明本站同意其观点,不得发布违反法律法规的内容!
						
						
 
	              	 
	              	 
	              	