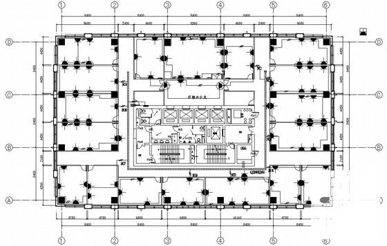
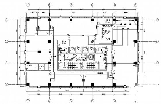
监管局办公楼室内装修电气CAD图纸(三级负荷)(配电系统)
- 发布时间:2022-10-14
- 评论次数:0
- 浏览次数:0
- 文件大小:7.87 MB
- 收藏次数:0
-
文件名称:
附件-995856950897767797657.rar
相关下载
- 监管局办公楼室内装修电气CAD施工图纸
- 3层酒店室内装修电气CAD施工图纸(三级负荷)
- 气象局3层办公楼装修电气CAD图纸(三级负荷)
- 6层办公楼装修电气CAD施工图纸(三级负荷)
- 单层甲类仓库电气CAD施工图纸(三级负荷)(照明配电系统)
- 时代广场装修电气设计CAD图纸(二级负荷)(配电系统)
- 地上6层快捷酒店装修电气CAD图纸(三级负荷供电)
- 6层快捷酒店装修电气CAD施工图纸(三级负荷供电)
- 养生会所电气装修施工图平面图(三级负荷)
- 2层会所装修电气CAD图纸(照明配电系统)
- 时代广场装修电气设计CAD图纸(配电系统)
- 普通住宅装修电气CAD图纸(配电系统)(dwg)
- 室内装修电气CAD图纸例
- 两层水泵房电气设计CAD图纸(三级负荷)(配电系统)
- 单层加油站电气设计CAD图纸(三级负荷)(低压配电系统)
- 两层小型农贸市场电气CAD施工图纸(三级负荷)(照明配电系统)
- 6层单身公寓强弱电电气CAD施工图纸(三级负荷))(照明配电系统)
- 拼叠4层住宅楼成套电气CAD图纸(三级负荷)(低压配电系统)
- 4层质检中心电气CAD施工图纸(三级负荷)(供配电系统)
- 6层住宅楼小区电气设计图纸(三级负荷)(供配电系统)
全部评论
评论网友评论仅友表达个人看法,并不表明本站同意其观点,不得发布违反法律法规的内容!
