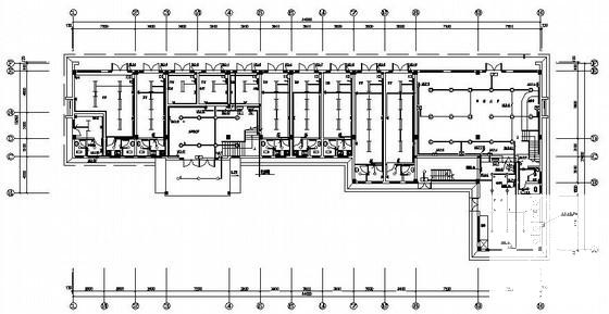
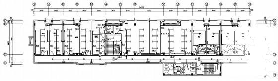
地上5层办公楼电气CAD施工图纸(三级负荷)
- 发布时间:2023-01-04
- 评论次数:0
- 浏览次数:0
- 文件大小:0.55 MB
- 收藏次数:0
- 
								文件名称: 附件-995856679996875077707.rar 附件-995856679996875077707.rar
								相关下载
							
						- 环卫地上2层办公楼电气CAD施工图纸(三级负荷)
- 小学地上5层办公楼强电CAD施工图纸(三级负荷)
- 地上两层小办公楼电气CAD施工图纸(三级负荷)
- 农场地上4层办公楼电气CAD施工图纸(三级负荷)
- 地上6层小区住宅楼电气CAD施工图纸(三级负荷)
- 地上6层住宅楼电气CAD施工图纸(三级负荷)
- 中学地上5层教学楼电气CAD施工图纸(三级负荷)
- 地上两层花园别墅电气CAD施工图纸(三级负荷)
- 地上4层车间电气CAD施工图纸(三级负荷)
- 小区地上5层住宅楼电气CAD施工图纸(三级负荷)
- 地上3层住宅楼别墅电气CAD施工图纸(三级负荷)
- 地上2层会所电气CAD施工图纸(三级负荷)(低压配电)
- 地上2层办公楼电气设计图纸(三级负荷)(综合布线系统)
- 地上6层快捷酒店装修电气CAD图纸(三级负荷供电)
- 585平米地上4层别墅电气图纸(三级负荷).dwg
- 检察院地上5层办公楼电气CAD施工图纸(二级负荷,三级负荷)(框架结构)
- 4层办公楼电气施工图纸(三级负荷)
- 3层小型办公楼电气CAD施工图纸(三级负荷)
- 3层办公楼电气CAD施工图纸(三级负荷)
- 3层办公楼电气CAD施工图纸(三级负荷)
全部评论
						
							评论网友评论仅友表达个人看法,并不表明本站同意其观点,不得发布违反法律法规的内容!
						
						
 
	              	 
	              	 
	              	