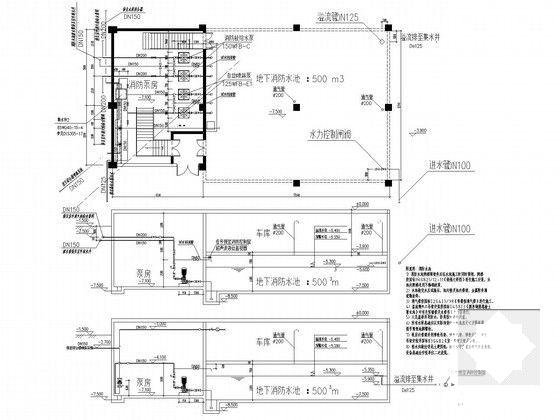
4层高校艺术体育中心给排水CAD施工图纸(自动喷水灭火系统)
- 发布时间:2022-10-14
- 评论次数:0
- 浏览次数:0
- 文件大小:4.52 MB
- 收藏次数:0
-
文件名称:
附件-995859775565967757855.rar
相关下载
- 宾馆给排水CAD图纸(自动喷水灭火系统)
- 车间给排水CAD图纸(自动喷水灭火系统)
- 6层高校综合楼给排水CAD施工图纸(自动喷水灭火系统)
- 自动雨淋灭火系统、自动喷水灭火系统CAD图纸
- 自动雨淋灭火系统、自动喷水灭火系统设计图纸
- 厂房自动喷水灭火系统设计施工cad图纸
- 自动喷水灭火系统工作原理CAD图纸
- 酒店消防成套CAD图纸(自动喷水灭火系统)
- 12层公寓建筑给排水CAD施工方案图纸(自动喷水灭火系统)
- 多层宾馆给排水CAD施工图纸(自动喷水灭火系统)
- 小高层给排水CAD施工方案图纸(自动喷水灭火系统)
- 16层酒店给排水消防CAD施工图纸(自动喷水灭火系统)
- 13层酒店给排水及消防CAD施工图纸(自动喷水灭火系统)
- 5层商场建筑给排水CAD施工图纸(自动喷水灭火系统)
- 6层通信机房给排水CAD施工图纸(自动喷水灭火系统)
- 6层商住房给排水消防CAD施工图纸(自动喷水灭火系统)
- 3层大学礼堂给排水设计CAD施工图纸(自动喷水灭火系统)
- 医院住院大楼给排水设计CAD施工图纸(自动喷水灭火系统)
- 25层综合楼给排水CAD施工图纸(自动喷水灭火系统)
- 9层综合楼给排水CAD施工图纸(自动喷水灭火系统)
全部评论
评论网友评论仅友表达个人看法,并不表明本站同意其观点,不得发布违反法律法规的内容!
