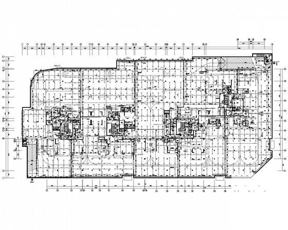
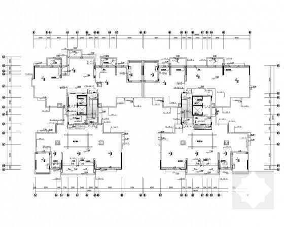
25层花园住宅楼给排水CAD施工图纸
- 发布时间:2022-10-13
- 评论次数:0
- 浏览次数:0
- 文件大小:7.54 MB
- 收藏次数:0
-
文件名称:
附件-995860776097899957595.rar
相关下载
- 11层花园17号住宅楼给排水施工图纸
- 18层花园式住宅楼小区给排水CAD施工图纸
- 中央花园26层住宅楼给排水成套CAD图纸
- 28层花园高层住宅楼给排水设计CAD图纸
- 杭州花园6层住宅楼给排水套cad图纸
- 花园住宅楼建筑CAD图纸
- 南方花园16层给排水施工图纸
- 11层县花园给排水施工图纸
- 南方花园高层给排水施工图纸
- 18层花园小区给排水CAD施工图纸
- 花园小区给排水CAD施工图纸.dwg
- 高层花园小区给排水CAD施工图纸.dwg
- 花园景观广场电气施工CAD图纸(给排水)
- 花园住宅楼建筑CAD施工图纸
- 花园住宅楼结构CAD施工图纸
- 25层花园住宅楼给排水CAD施工方案图纸(自动喷水灭火系统)
- 11层花园住宅楼给排水设计cad施工图纸和室内消火栓系统
- 小区屋顶花园给排水设计CAD图纸
- 花园文化活动中心给排水CAD图纸
- 城市花园地上13层住宅楼给排水成套图纸(设计说明).dwg
全部评论
评论网友评论仅友表达个人看法,并不表明本站同意其观点,不得发布违反法律法规的内容!
