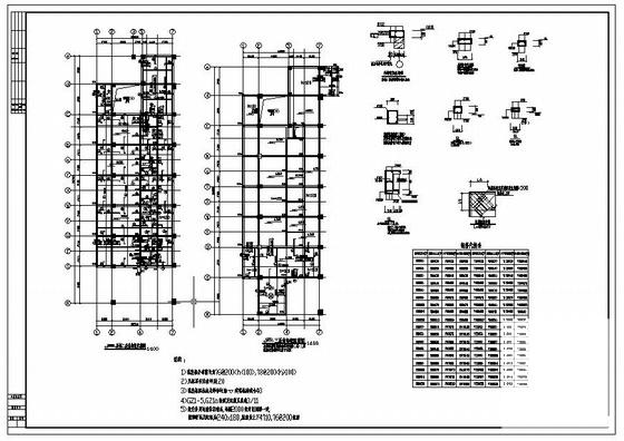
3层桩基础教育中心食堂餐厅结构设计CAD施工图纸(平面布置图)
- 发布时间:2022-10-13
- 评论次数:0
- 浏览次数:0
- 文件大小:0.63 MB
- 收藏次数:0
- 
								文件名称: 附件-995877988576807755850.rar 附件-995877988576807755850.rar
								相关下载
							
						- 3层教育中心食堂餐厅结构设计CAD施工图纸
- 工厂食堂餐厅配电CAD图纸
- 3层框架餐厅结构设计图纸cad平面布置图
- 3层桩基础钢框架食堂结构CAD施工图纸(7度抗震)(平面布置图)
- 小学食堂基础详图纸平面布置图
- 永嘉县3层桩基础框架结构学校食堂结构设计CAD施工图纸(平面布置图)
- 餐厅照明平面CAD图纸
- 餐厅照明平面CAD图纸
- 独立基础钢结构食堂结构CAD施工图纸(模型)(平面布置图)
- 大学食堂改造钢结构施工图纸cad平面布置图
- 大学食堂改造维修项目给排水施工图纸cad平面布置图
- 3层框架结构学生食堂结构CAD施工图纸(桩基础)(平面布置图)
- 桩基础6层连体别墅结构设计CAD施工图纸(平面布置图)
- 3层独立基础框架结构食堂结构设计图纸(平面布置图)
- 3层框架结构食堂结构施工图平面布置图详图
- 知名餐厅弱电平面CAD图纸
- 餐厅空调平面设计CAD图纸
- 火锅餐厅空调平面图纸.
- 高层桩基础钢结构结构CAD施工图纸(平面布置图)
- 桩基础私人住宅框架结构CAD施工图纸(平面布置图)
全部评论
						
							评论网友评论仅友表达个人看法,并不表明本站同意其观点,不得发布违反法律法规的内容!
						
						
 
	              	 
	              	 
	              	