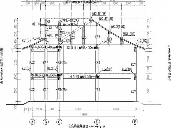
两层坡屋顶框架景观餐厅结构CAD施工图纸(平面布置图)
- 发布时间:2022-09-22
- 评论次数:0
- 浏览次数:0
- 文件大小:0.4 MB
- 收藏次数:0
- 
								文件名称: 附件-995876696988889598707.zip 附件-995876696988889598707.zip
								相关下载
							
						- 仿古坡屋顶框架结构CAD施工图纸(平面布置图)
- 坡屋顶异形柱框架别墅结构CAD施工图纸(平面布置图)
- 两层框架结构会所结构设计施工图纸(坡屋顶)
- 两层框架结构会所结构CAD施工图纸(坡屋顶)
- 两层坡屋顶框架别墅结构设计全套施工图纸
- 两层框架坡屋顶别墅结构设计施工图纸
- 两层框架坡屋顶别墅结构CAD施工图纸
- 坡屋顶框架结构住宅结构设计CAD施工图纸(平面布置图)
- 条形基础单层钢框架结构CAD施工图纸(地圈梁、坡屋顶)(平面布置图)
- 4层框架综合楼结构CAD施工图纸(坡屋顶)(平面布置图)
- 坡屋顶别墅结构详图纸平面布置图
- 带坡屋顶的砖混结构CAD图纸(平面布置图)
- 两层砖混结构坡屋顶办公楼结构CAD施工图纸
- 两层框架结构条形基础坡屋顶别墅结构CAD施工图纸(地下室顶板)
- 两层坡屋顶砌体别墅结构施工图纸(建筑施工CAD图纸)
- 两层坡屋顶砌体别墅结构CAD施工图纸
- 两层坡屋顶别墅结构CAD施工图纸
- 两层框架坡屋顶住宅楼结构CAD施工图纸(条形基础)
- 坡屋顶框架别墅结构设计方案图纸(基础平面图)
- 3层框架餐厅结构设计图纸cad平面布置图
全部评论
						
							评论网友评论仅友表达个人看法,并不表明本站同意其观点,不得发布违反法律法规的内容!
						
						
 
	              	 
	              	 
	              	 
	              	 
	              	