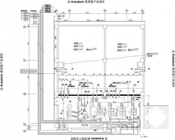
6层饲料厂建筑给排水CAD施工图纸(科研楼、宿舍、厂房、锅炉房)
- 发布时间:2022-10-13
- 评论次数:0
- 浏览次数:0
- 文件大小:4.96 MB
- 收藏次数:0
- 
								文件名称: 附件-995860767995767578589.rar 附件-995860767995767578589.rar
								相关下载
							
						- 6层饲料厂建筑给排水施工CAD大样图(科研楼、宿舍、厂房、锅炉房)
- 饲料厂车间及科技综合楼给排水消防CAD施工图纸
- 8层医院科研楼给排水设计CAD图纸
- 科研楼改酒店工程给排水CAD图纸
- 5层科研楼给排水CAD图纸
- 高层科研教学楼给排水成套CAD图纸
- 1800平米饲料厂房车间强弱电施工图纸
- 5层饲料厂房电气照明设计CAD施工图纸
- 饲料厂房车间强弱电CAD施工图纸
- 5层厂房宿舍给排水消防设计CAD图纸
- 服饰公司厂房及宿舍给排水设计CAD图纸
- 工业厂房给排水消防完整施工图纸(宿舍、办公楼).dwg
- 饲料厂仓库给排水及消防CAD施工图纸
- 7层科研楼建筑施工CAD图纸
- 6层饲料厂综合楼及生产车间给排水消防CAD施工图纸
- 宿舍楼给排水图纸
- 13层科研大楼给排水施工工程CAD图纸
- 工程科研楼建筑结构CAD图纸
- 工厂多层厂房、宿舍、办公楼建筑施工CAD图纸
- 饲料厂区建筑群电气CAD施工图纸(总图纸)
全部评论
						
							评论网友评论仅友表达个人看法,并不表明本站同意其观点,不得发布违反法律法规的内容!
						
						
 
	              	 
	              	 
	              	 
	              	 
	              	