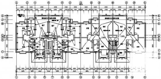
5层小区五栋住宅楼电气CAD施工图纸
- 发布时间:2022-10-12
- 评论次数:0
- 浏览次数:0
- 文件大小:2.44 MB
- 收藏次数:0
- 
								文件名称: 附件-995856698695678988978.zip 附件-995856698695678988978.zip
								相关下载
							
						- 5层砖混结构小区结构施工图纸(五栋)
- 5层砖混结构小区结构CAD施工方案图纸(五栋)
- 五栋17层剪力墙结构住宅楼结构施工图纸
- 高校5层五栋学院楼电气设计CAD施工图纸
- 30层住宅楼小区电气施工图纸
- 11层住宅楼小区电气施工图纸
- 18层小区住宅楼电气施工图纸
- 小区住宅楼项目电气CAD施工图纸
- 小区住宅楼电气CAD施工图纸(人防)
- 小区住宅楼电气CAD施工图纸
- 高层小区住宅楼电气CAD施工图纸
- 小区住宅楼电气CAD施工图纸
- 小区住宅楼电气CAD施工图纸
- 小区住宅楼电气施工设计CAD图纸
- 住宅小区住宅楼电气施工CAD图纸
- 小区住宅楼电气CAD施工图纸
- 18层小区住宅楼电气施工图纸
- 五栋17层剪力墙结构普通住宅楼结构施工图纸
- 9层框架结构住宅楼结构CAD施工图纸(五栋共用基础)
- 五栋17层剪力墙结构普通住宅楼结构CAD施工图纸
全部评论
						
							评论网友评论仅友表达个人看法,并不表明本站同意其观点,不得发布违反法律法规的内容!
						
						
 
	              	 
	              	 
	              	