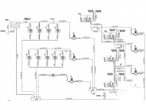
2层知名企业厂房净化除尘系统CAD施工图纸(固、液制剂车间提取车间)
- 发布时间:2022-10-09
- 评论次数:0
- 浏览次数:0
- 文件大小:6.5 MB
- 收藏次数:0
-
文件名称:
附件-995858557805785805655.rar
相关下载
- 药厂制剂车间净化空调系统图纸.dwg
- 口服液车间净化空调设计CAD图纸
- 口服液车间净化空调设计CAD图纸
- 药厂综合制剂车间净化空调施工图纸
- 制剂车间净化空调设计CAD大样图
- 2层知名企业厂房净化除尘系统全套施工CAD图纸
- 2层6000平制剂医药车间净化空调CAD施工图纸(全空气系统)
- 制剂车间施工图纸.
- 公司拆建工程提取车间结构施工图纸
- 药品提取车间强电CAD施工图纸(电气照明)
- 制剂车间结构CAD施工图纸
- 1890平米综合制剂车间净化工程设计施工图纸
- 医院中药制剂车间净化空调施工图纸平面图
- 工业建筑制剂车间暖通设计CAD施工图纸(万级净化空调)
- 综合制剂车间净化工程设计CAD施工图纸
- 电解锰厂制液车间
- 24636平米2层制剂车间净化空调设计施工大样图
- 制剂车间暖通设计CAD图纸
- 综合制剂车间工艺照明平面
- 十万级净化车间空调系统设计施工图纸
全部评论
评论网友评论仅友表达个人看法,并不表明本站同意其观点,不得发布违反法律法规的内容!
