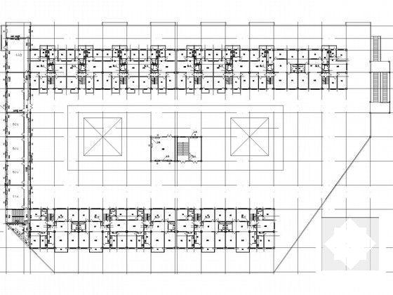
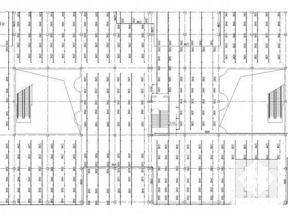
商业大厦及商住楼采暖空调系统设计CAD施工图纸(给排水设计消防系统设计)(螺杆式冷水机组)
- 发布时间:2022-10-09
- 评论次数:0
- 浏览次数:0
- 文件大小:5.73 MB
- 收藏次数:0
-
文件名称:
附件-995858895989868068770.rar
相关下载
- 医院综合楼空调采暖通风及排烟系统设计CAD施工图纸(甲级院设计)(螺杆式冷水机组)
- 5层大型商业楼空调通风及防排烟系统改造设计CAD施工图纸(机房设计)(螺杆式冷水机组)
- 4层商业办公大厦空调通风及防排烟系统设计CAD施工图纸(采暖设计)
- 双层商业中心建筑空调系统设计CAD施工图纸(给排消防设计)(螺杆式冷水机组)
- 3层酒店空调设计CAD施工图纸(螺杆式冷水机组)
- 市综合办公大楼空调系统毕业设计方案(螺杆式冷水机组)
- 商业建筑空调及通风系统设计CAD施工图纸(水冷式冷水机组)
- 商业建筑空调及通风系统设计CAD施工图纸(水冷式冷水机组)
- 45层办公楼空调通风及防排烟系统设计CAD施工图纸(螺杆式冷水机组)
- 25层酒店建筑空调通风及防排烟系统设计CAD施工图纸(螺杆式冷水机组)
- 25层酒店建筑空调通风及防排烟系统设计CAD施工图纸(螺杆式冷水机组)
- 商业广场商住楼空调通风防排烟系统设计CAD施工图纸(中央集中式空调)(螺杆式冷水机组)
- 7层商住楼给排水设计CAD施工图纸(消防系统图)
- 商业大厦空调设计CAD图纸
- 商业楼给排水及消防系统CAD施工图纸(自动喷淋)
- 多层商业建筑给排水消防系统设计施工大样图
- 12层五星酒店中央空调施工设计图纸(螺杆式冷水机组)
- 22层大酒店暖通空调施工设计CAD图纸(螺杆式冷水机组)
- 秦皇大剧院暖通空调设计CAD施工方案图纸(螺杆式冷水机组)
- 16层工业厂房高层宿舍楼空调通风系统设计CAD施工图纸(消防设计)(螺杆式冷水机组)
全部评论
评论网友评论仅友表达个人看法,并不表明本站同意其观点,不得发布违反法律法规的内容!
