启东市便民服务中心给排水设计图纸(生活给水系统,饮水系统,消火栓给水系统)

设计说明

一、概述

该项目为启东市便民服务中心,地上8层,建筑类别为二类高层民用建筑,建筑高度32.4米。 该项目给排水设计标高与建筑图一致, 0.00相当于绝对标高3.90,标高以米计,管径以毫米计,给水管标高为管中心标高,排水管标高为管内底标高。

二、生活给水系统

该项目最高日生活用水量为11.5立方/日。市政给水管网接出两根DN200管道,在基地周围环通形成环状管网,供该项目使用。市政供水压力为0.28MPa。 该项目采用分区供水方式。四层及四层以下为低区,采用市政压力供水;五层~八层为高区,采用生活贮水箱→变频增压泵→气压罐 联合供水方式,泵房位于地上一层。卫生间管路设计由二次装修设计而定,该资料仅考虑立管设计。

三、饮水系统

办公室均设自动饮水机供应开水。

四、消火栓给水系统

室内消火栓用水量为20L/s,室外消火栓用水量为20L/s,自动喷水灭火系统用水量为30L/s,室内外消防总用水量为70L/s。室外消防用水由基地供水管网直接供给;室内消火栓系统由消防泵抽吸消防水池中水供给,喷淋系统亦由喷淋泵抽吸消防水池中水供给;消火栓给水泵与喷淋泵均设于地下室水泵房内。本建筑所在地块内各单体建筑消防供水按一次火灾考虑,消火栓及喷淋系统均设置两条供水管接至室外。消火栓给水系统消防用水由3:2比例式减压阀减压后供给,阀后压力0.7Mpa。地下水泵房设410立方混凝土消防水池一座,屋顶水箱间设置消防水箱一只,贮存18立方消防水量,同处设置消防、喷淋增压稳压设备各一套,满足喷淋系统及消火栓系统最不利点压力要求。 建筑物内每层设置单栓自救式消防卷盘组合型消火栓箱,内配%%C65室内消火栓,%%C65/25m衬胶水龙带及%%C19水枪各一副,JPS0.8-19型自救式消防卷盘一套,启泵按钮一只。部分搂层设置减压孔板,为栓后固定接口内安装,材料详见国标04S202;栓口用水压力不大于0.50MPa。 高、低区分别设置SQS100型水泵接合器三座,材料详见国标99S203/11,设置位置由总体设计而定。

五、自动喷水灭火系统

该项目内设置自动喷水灭火系统;一层层高超过8米的门厅按非仓库类高大净空场所设计,设计喷水强度为6L/min·平米,作用面积260平米;其余设置场所为中危险级Ⅰ级,设计喷水强度为6L/min·平米,作用面积160平米。一层车库设计危险等级为中危险级Ⅱ级;设计喷水强度为8L/min·平方 ,作用面积160平方。水力报警阀设置于水设备机房及水管井;其显示信号接至防灾中心并启动喷淋泵。水力报警阀安装喷头数不超过800个。 吊顶下的喷头为下垂型喷头,其余均为直立型喷头;直立型喷头溅水盘距顶150mm ;喷头动作温度均为68℃。一层车库采用易熔合金喷头;喷头应具有备用,其数量不得小于总数地1%,且每种型号的喷头不得小于10只。初期火灾用水由消防水箱和消防增压稳压设备保证, 设置SQS100型水泵接合器三座,材料详见国标99S203/11,设置位置由总体设计而定。六、灭火器及其它灭火系统 消火栓设置位置同处配5kg磷酸铵盐手提式灭火器两具;电梯机房内及强弱电配电间内均应设置手提磷酸铵盐灭火器。中心机房和档案库房采用七氟丙烷柜式气体灭火系统(需厂家配合深化设计)

六、排水系统

1、室内排水为生活污、废水合流。

2、消防电梯集水坑设潜水泵排水。

3、室内排水管道坡度:De50,i=0.025;De75,i=0.015; De110,i=0.012;De160,i=0.007;De200,i=0.004。

室内排出管道坡度:De50,i=0.035;De75,i=0.025; De110,i=0.02;De160,i=0.01;De200,i=0.005。

七、图纸展示

自动喷水灭火系统

一层平面图

一层喷淋平面图

卫生间首层排水系统图

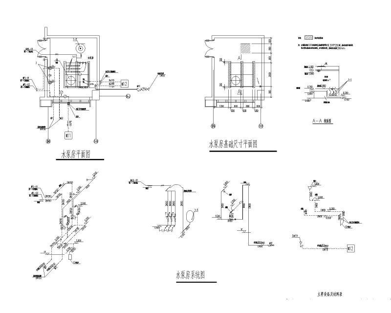
水泵房系统图

以下是附件的其中一部分截图,共5张,您也可以 搜索 更多您想要的资源
  • 启东市便民服务中心给排水设计图纸(生活给水系统,饮水系统,消火栓给水系统) - 1
    第 1 张图
  • 启东市便民服务中心给排水设计图纸(生活给水系统,饮水系统,消火栓给水系统) - 2
    第 2 张图
  • 启东市便民服务中心给排水设计图纸(生活给水系统,饮水系统,消火栓给水系统) - 3
    第 3 张图
  • 启东市便民服务中心给排水设计图纸(生活给水系统,饮水系统,消火栓给水系统) - 4
    第 4 张图
  • 启东市便民服务中心给排水设计图纸(生活给水系统,饮水系统,消火栓给水系统) - 5
    第 5 张图
以上是部分截图,请下载附件后查看完整高清内容
全部评论
评论网友评论仅友表达个人看法,并不表明本站同意其观点,不得发布违反法律法规的内容!
网站首页  | 
本站所有内容均由网友自主分享,仅供学习和参考,如有侵权内容或者违法行为,请及时联系站长删除。