启东市便民服务中心空调系统全套设计
- 发布时间:2021-11-30
- 评论次数:0
- 浏览次数:0
- 文件大小:2.66 MB
- 收藏次数:0
- 
								文件名称: 附件-995857868990857857857.zip 附件-995857868990857857857.zip
								便民服务中心设计下载
							
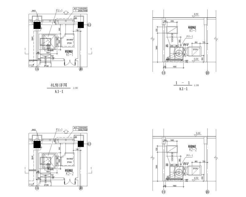
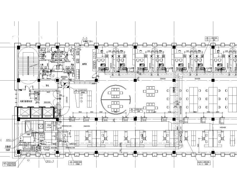
						- 8层启东市便民服务中心暖通CAD施工图纸.dwg
- 启东市便民服务中心给排水设计图纸(生活给水系统,饮水系统,消火栓给水系统)
- 8层详细!启东市便民服务中心6号楼给排水及喷淋系统CAD施工图纸(钢筋混凝土结构)
- 启东市市级机关后勤服务中心通风设计全套图纸
- 8层便民服务中心风冷热泵空调设计CAD施工图纸
- 8层便民服务中心给排水全套CAD施工图纸
- 8层12800平米便民服务中心风冷热泵空调设计施工图纸
- 3层便民服务中心给排水CAD施工方案图纸(自动喷水灭火系统)
- 9层明船市便民服务中心暖通系统施工方案图纸(CAD)
- 21层启东市行政综合服务中心暖通系统施工方案图纸(CAD)
- 8层便民服务中心给排水图纸(卫生间详图)
- 单层便民服务中心电气CAD施工图纸
- 便民服务中心绿化工程景观施工图纸.dwg
- 21层启东市行政综合服务中心暖通CAD施工图纸
- 12层便民服务中心办公楼电气施工CAD图纸(2015年设计)
- 启东市市级机关后勤服务中心通风设计图纸(静电式油烟净化器)
- 启东市档案馆暖通设计CAD图纸(VRV空调系统原理图)
- 3层便民服务中心及配套设施框架结构CAD施工大样图
- 服务中心空调通风设计施工图系统图
- 小型办公服务中心空调系统设计CAD施工图纸
全部评论
						
							评论网友评论仅友表达个人看法,并不表明本站同意其观点,不得发布违反法律法规的内容!
						
						
 
	              	 
	              	 
	              	 
	              	 
	              	