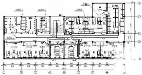
上4层消防站中队大楼电气CAD施工图纸(三级负荷)
- 发布时间:2022-10-06
- 评论次数:0
- 浏览次数:0
- 文件大小:0.47 MB
- 收藏次数:0
- 
								文件名称: 附件-995856795799055687589.rar 附件-995856795799055687589.rar
								相关下载
							
						- 4层消防站中队大楼电气CAD施工图纸(防雷接地系统)
- 5层消防站电气施工图纸(三级负荷)
- 国内上4层商贸区电气施工图纸(三级负荷)
- 上3层电影院电气施工图纸(三级负荷)
- 上4层中学电气CAD施工图纸(三级负荷)
- 上两层双拼别墅电气CAD施工图纸(三级负荷)
- 上两层别墅电气CAD施工图纸(三级负荷).dwg
- 上2层别墅电气施工图纸(三级负荷).
- 两层服务站大楼电气CAD施工图纸(三级负荷)
- 4层幼儿园大楼电气CAD施工图纸(三级负荷)
- 中学6层教学大楼电气CAD施工图纸(三级负荷)
- 上5层住宅楼电气图纸(三级负荷)
- 消防中队3层办公楼装修电气CAD图纸(二级负荷)
- 上3层办公楼强电CAD施工图纸(三级负荷)
- 上6层办公楼照明CAD施工图纸(三级负荷)
- 上4层水果市场电气CAD施工图纸(三级负荷)(消防设计说明)
- 上10层连锁酒店装饰电气CAD施工图纸(水暖安装大样三级负荷)
- 上19层大厦景观照明电气施工图(三级负荷,17页图纸)
- 上6层住宅楼带阁楼电气CAD施工图纸(三级负荷)
- 上4层派出所办公楼电气CAD施工图纸(三级负荷)
全部评论
						
							评论网友评论仅友表达个人看法,并不表明本站同意其观点,不得发布违反法律法规的内容!
						
						
 
	              	 
	              	 
	              	