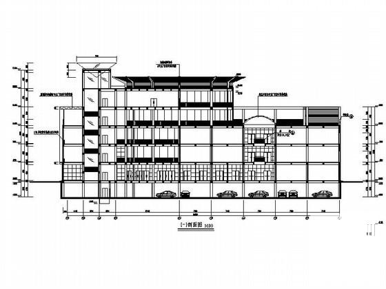
5层商城建筑施工套CAD图纸(屋顶平面图)
- 发布时间:2022-09-28
- 评论次数:0
- 浏览次数:0
- 文件大小:3.36 MB
- 收藏次数:0
- 
								文件名称: 附件-995855805075879585755.rar 附件-995855805075879585755.rar
								相关下载
							
						- 5层商城建筑施工套图纸
- 商城单体组合设计方案(屋顶CAD平面图)
- 3套9层宿舍楼建筑CAD施工图纸(屋顶平面图)
- 屋顶花园方案套图纸
- 商城单体组合设计方案cad平面图
- 高层商住建筑图纸(屋顶构架平面图)
- 逸趣亭建筑详图纸_屋顶平面图_cad
- 屋顶平面图纸.dwg
- 13套屋顶花园CAD施工方案图纸
- 银河大厦屋顶花园套CAD施工图纸
- 小型建筑屋顶花园景观工程施工套图纸
- 国际20层商城建筑施工CAD图纸
- 商城地下车库人防建筑CAD施工图纸
- 国际20层商城建筑施工CAD图纸.dwg
- 屋顶花园种植平面图纸
- 7套屋顶节点详图纸设计(CAD)
- 国际商城地板辐射采暖设计cad施工图纸和管道平面图
- 21套屋顶花园CAD施工方案图纸(8)办公楼屋顶花园环境工程套图纸.dwg
- 别墅建筑设计建筑图纸(屋顶CAD平面图)
- 小区1层地下1层车库建筑施工CAD图纸(屋顶平面图)
全部评论
						
							评论网友评论仅友表达个人看法,并不表明本站同意其观点,不得发布违反法律法规的内容!
						
						
 
	              	 
	              	 
	              	