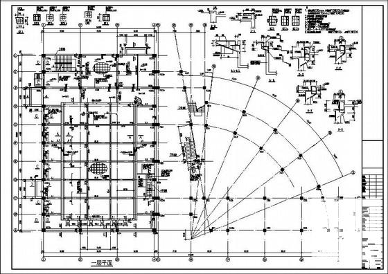
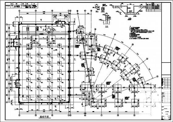
3层框架学校体育活动中心结构CAD施工图纸(带游泳馆)(屋顶平面图)
- 发布时间:2022-09-23
- 评论次数:0
- 浏览次数:0
- 文件大小:3.15 MB
- 收藏次数:0
- 
								文件名称: 附件-995876775755808556795.rar 附件-995876775755808556795.rar
								相关下载
							
						- 学校体育活动中心暖通施工图纸平面图及系统图
- 3层学校餐厅体育活动中心电气CAD施工图纸
- 星光学校3层学生食堂、体育馆建筑初步图纸(屋顶构架平面图)
- 高层框架结构拱形金属屋面甲级体育游泳馆建筑施工CAD图纸
- 高层框架结构拱形金属屋面甲级体育游泳馆建筑施工CAD图纸
- 活动中心游泳馆网架CAD图纸
- 1层财经学校体育活动中心建筑结构CAD施工图纸
- 网架结构活动中心游泳馆结构设计施工图纸
- 健身活动中心游泳馆屋面钢网架结构施工图纸
- 框架结构办公楼体育活动中心暖通空调设计图纸
- 框架结构学校游泳馆建筑结构CAD施工方案图纸(、8张)
- 国内学校体育活动中心暖通设计CAD施工图纸(地暖)
- 底部框架抗震墙网壳屋顶体育馆结构施工图纸.dwg
- 坡屋顶,带地下室框架住宅结构施工图纸
- 坡屋顶带架空层框架别墅结构CAD施工图纸(独立基础)
- 坡屋顶带架空层框架别墅结构CAD施工图纸
- 网架屋盖2层框架结构大学体育活动中心结构CAD施工图纸(基础平面图)
- 学校4层多功能体育馆建筑施工CAD图纸(广场平面图)
- 两层框架学校体育馆结构CAD施工大样图
- 健身活动中心游泳馆屋面钢网架CAD施工图纸
全部评论
						
							评论网友评论仅友表达个人看法,并不表明本站同意其观点,不得发布违反法律法规的内容!
						
						
 
	              	 
	              	 
	              	