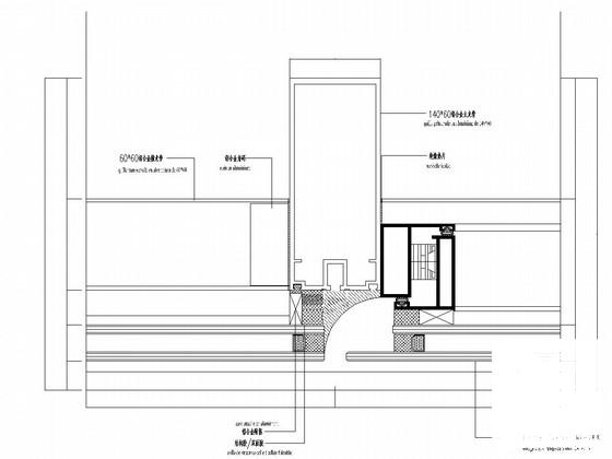
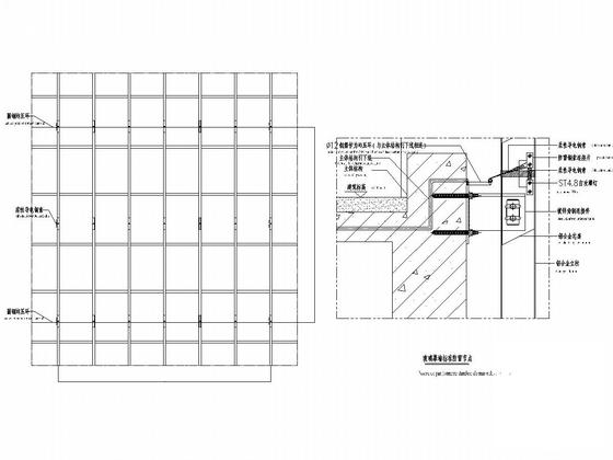
3层框架中国援建学校体育馆幕墙CAD施工图纸
- 发布时间:2022-11-13
- 评论次数:0
- 浏览次数:0
- 文件大小:3.09 MB
- 收藏次数:0
- 
								文件名称: 附件-995877659698957705656.rar 附件-995877659698957705656.rar
								相关下载
							
						- 3层中国援建学校体育馆幕墙竣工CAD施工图纸
- 学校多功能体育馆强电施工图纸
- 学校欧式体育馆建筑施工CAD图纸
- 两层框架学校体育馆结构CAD施工大样图
- 3层框架结构室内体育馆结构CAD施工图纸(建筑图纸中国承建)
- 尼泊尔援建医院主体结构施工方案cad
- 学校框架结构3层体育馆建筑方案设计CAD图纸
- 3层框架结构体育馆建筑幕墙CAD施工图纸图纸
- 地上3层框架结构体育馆铝板幕墙工程CAD施工图纸
- 中国农业大学体育馆建筑方案设计初设图纸.
- 学校会堂幕墙工程CAD施工图纸
- 两层框架学校体育馆结构设计施工大样图
- 体育馆电梯幕墙竣工图纸2018
- 体育学校幕墙工程CAD施工大样图
- 幕墙各种节点汇总(大学体育馆)
- 中国石油大学校区工科实验楼结构设计
- 中学学校体育馆建筑CAD施工图纸(卫生间大样)
- 学校4层多功能体育馆建筑施工CAD图纸(广场平面图)
- 学校欧式体育馆建筑施工CAD图纸(卫生间详图)
- 学校体育馆建筑CAD施工图纸(卫生间大样)
全部评论
						
							评论网友评论仅友表达个人看法,并不表明本站同意其观点,不得发布违反法律法规的内容!
						
						
 
	              	 
	              	 
	              	 
	              	 
	              	