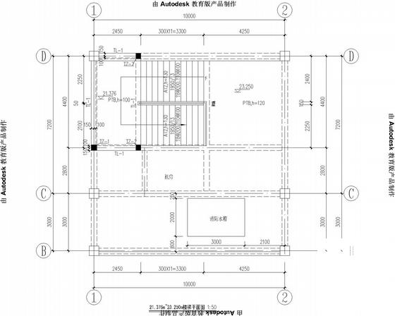
地上6层局部5层框架办公楼结构CAD施工图纸
- 发布时间:2022-09-22
- 评论次数:0
- 浏览次数:0
- 文件大小:1.31 MB
- 收藏次数:0
- 
								文件名称: 附件-995876795979558797567.zip 附件-995876795979558797567.zip
								相关下载
							
						- 地上6层局部5层框架办公楼结构CAD施工图纸
- 地上单层(局部夹层)框架结构陈列馆结构CAD施工图纸
- 地上3层框架结构法庭结构CAD施工图纸(地下局部1层)
- 地上7层局部3层框架住宅结构CAD施工图纸
- 局部4层框架结构办公楼结构施工图纸
- 单层砌体结构(局部框架)苗木基地办公楼结构CAD施工图纸
- 地上6层框架(局部少墙)结构图纸书馆结构CAD施工图纸
- 局部4层全框架结构办公楼建筑施工CAD图纸
- 地上1层局部两层框架结构中式别墅结构CAD施工图纸
- 地上单层(局部架空层)框架结构纪念馆结构CAD施工图纸
- 地上1层局部两层框架结构中式别墅结构CAD施工图纸
- 地上3层(局部4层)框架结构幼儿园结构CAD施工图纸.dwg
- 地上1层砖混结构局部钢结构职工餐厅结构施工图纸
- 地上3层局部2层框架商业及商业辅助用房结构CAD施工图纸
- 地上单层(局部夹层2层)框排架结构联合工房结构CAD施工图纸
- 地上5层框架结构商业办公楼地上部分结构施工图纸
- 7层带局部地下室框架办公楼结构CAD图纸
- 7层(局部6层)办公楼框架结构设计说明
- 地上12层框架结构办公楼结构设计施工图纸
- 地上3层框架结构办公楼结构设计施工图纸
全部评论
						
							评论网友评论仅友表达个人看法,并不表明本站同意其观点,不得发布违反法律法规的内容!
						
						
 
	              	 
	              	 
	              	 
	              	 
	              	