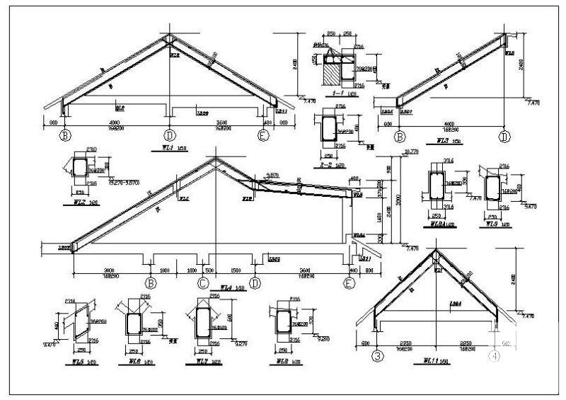
坡屋顶别墅结构详图纸平面布置图
- 发布时间:2021-12-15
- 评论次数:0
- 浏览次数:0
- 文件大小:0.42 MB
- 收藏次数:0
- 
								文件名称: 附件-995798870785859509.rar 附件-995798870785859509.rar
								坡屋顶别墅详图下载
							
						- 坡屋顶别墅檐口节点CAD详图纸
- 坡屋顶别墅结构详图(6页CAD图纸)
- 坡屋顶别墅建筑CAD图纸
- 3层坡屋顶别墅结构施工图纸
- 坡屋顶别墅檐口节点详细设计CAD图纸
- 坡屋顶框剪别墅结构CAD施工图纸
- 坡屋顶3层独栋别墅建筑施工CAD图纸
- 平坡屋顶独栋别墅建筑施工CAD图纸
- 欧式别墅坡屋顶及墙体节点构造CAD详图纸
- 坡屋顶细部构造节点CAD详图纸.dwg
- 坡屋顶及楼梯节点构造详图纸cad
- 坡屋顶构造详细设计CAD图纸
- 坡屋顶老虎窗配筋大样
- 坡屋顶框混别墅建筑结构施工图纸
- 3层框架结构别墅结构设计施工图纸(坡屋顶)
- 4层坡屋顶框架别墅结构设计施工图纸
- 两层坡屋顶框架别墅结构设计全套施工图纸
- 两层框架坡屋顶别墅结构设计施工图纸
- 坡屋顶框架结构别墅结构设计图纸
- 4层小型别墅坡屋顶混凝土结构施工方案图纸
全部评论
						
							评论网友评论仅友表达个人看法,并不表明本站同意其观点,不得发布违反法律法规的内容!
						
						
 
	              	 
	              	 
	              	