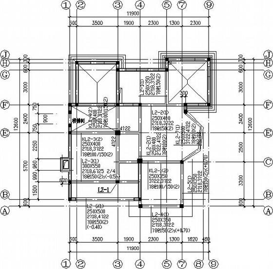
两层框架结构条形基础坡屋顶别墅结构CAD施工图纸(地下室顶板)
- 发布时间:2022-11-13
- 评论次数:0
- 浏览次数:0
- 文件大小:0.45 MB
- 收藏次数:0
-
文件名称:
附件-995876765779965999977.zip
相关下载
- 两层砖混结构坡屋顶办公楼结构CAD施工图纸(条形基础)
- 两层框架坡屋顶住宅楼结构CAD施工图纸(条形基础)
- 剪力墙结构私人自建别墅结构CAD施工方案图纸(3层坡屋顶条形基础)
- 2层条形基础砖混别墅结构CAD施工图纸(坡屋顶)(平面布置图)
- 2层坡屋顶温泉酒店结构CAD施工图纸(条形基础)
- 条形基础单层钢框架结构CAD施工图纸(地圈梁、坡屋顶)(平面布置图)
- 两层坡屋顶砌体别墅结构施工图纸(建筑施工CAD图纸)
- 两层框架结构会所结构设计施工图纸(坡屋顶)
- 两层框架结构会所结构CAD施工图纸(坡屋顶)
- 两层坡屋顶框架别墅结构设计全套施工图纸
- 两层框架坡屋顶别墅结构设计施工图纸
- 两层框架坡屋顶别墅结构CAD施工图纸
- 两层坡屋顶砌体别墅结构CAD施工图纸
- 两层坡屋顶别墅结构CAD施工图纸
- 3层砌体结构别墅建筑结构CAD施工图纸(条形基础坡屋面)
- 3层砌体结构别墅建筑结构CAD施工图纸(条形基础坡屋面)
- 3层框架结构坡屋顶别墅结构CAD施工图纸(地下1层)(基础设计等级)
- 独立基础框架结构别墅结构CAD施工图纸(2层坡屋顶)(建筑设计说明)
- 两层砖混结构条形基础别墅结构设计施工图纸
- 两层条形基础砌体结构别墅结构CAD施工图纸(建施)
全部评论
评论网友评论仅友表达个人看法,并不表明本站同意其观点,不得发布违反法律法规的内容!
