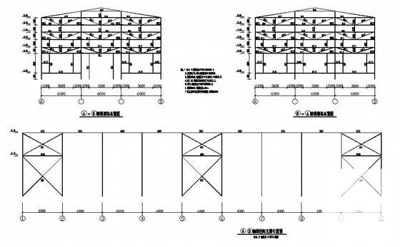
带15吨吊车钢结构厂房结构CAD施工图纸(基础平面图)
- 发布时间:2022-09-20
- 评论次数:0
- 浏览次数:0
- 文件大小:0.37 MB
- 收藏次数:0
- 
								文件名称: 附件-995877558777868907757.rar 附件-995877558777868907757.rar
								相关下载
							
						- 带吊车钢结构厂房结构CAD施工图纸
- 带吊车钢结构厂房结构CAD施工图纸
- 带吊车钢结构厂房结构设计施工图纸(独立基础)
- 钢结构厂房结构CAD施工图纸(独立基础带吊车)(轻型门式刚架)
- 钢结构厂房结构CAD施工图纸(独立基础带吊车)
- 带吊车钢结构厂房CAD施工图纸
- 独立基础电器厂房钢结构CAD施工图纸(带吊车梁)
- 带吊车门式刚架厂房结构设计图纸(基础平面图)
- 带吊车钢结构车间全套图纸
- 2×21米跨门刚厂房结构CAD施工图纸(带吊车,含建施)(基础平面图)
- 17.7m跨带吊车钢结构厂房结构设计施工图纸
- 带吊车带夹层钢结构厂房结构设计施工图纸
- 钢结构厂房建筑结构CAD施工图纸(带吊车)
- 门式刚架钢结构厂房结构CAD施工图纸(带吊车)
- 单层带吊车钢结构厂房结构CAD施工图纸
- 钢结构厂房结构CAD施工图纸(30米跨带吊车)
- 钢结构厂房结构CAD施工图纸(24米跨带吊车)
- 单层两跨带吊车钢结构厂房结构施工图纸(PDF、12张).
- 带吊车钢结构车间结构CAD施工图纸
- 钢结构厂房结构CAD施工大样图(带吊车)
全部评论
						
							评论网友评论仅友表达个人看法,并不表明本站同意其观点,不得发布违反法律法规的内容!
						
						
 
	              	 
	              	 
	              	