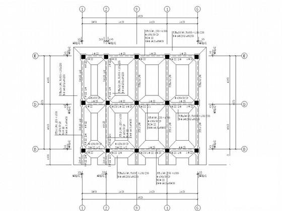
6层框架剪力墙结构商住楼结构CAD施工图纸(条形基础)
- 发布时间:2022-09-19
- 评论次数:0
- 浏览次数:0
- 文件大小:1.19 MB
- 收藏次数:0
-
文件名称:
附件-995877908859988667887.rar
相关下载
- 框架剪力墙运动中心结构CAD施工图纸(条形基础)
- 12层框架剪力墙住宅楼结构CAD施工图纸(条形基础)
- 24层框架剪力墙住宅楼结构CAD施工图纸(条形基础)
- 16层框架剪力墙商住楼结构CAD施工图纸(独立基础)
- 剪力墙结构条形基础别墅结构设计施工图纸
- 3层剪力墙结构办公楼结构CAD施工图纸(条形基础)
- 26层条形基础剪力墙结构住宅楼结构CAD施工图纸
- 30层剪力墙结构住宅楼结构CAD施工图纸(条形基础)
- 3层条形基础框架结构别墅结构CAD施工图纸(建筑图纸)
- 12层框架剪力墙商住楼结构结构施工图纸(基础平面图)
- 17层框架剪力墙结构商住楼结构施工图纸(筏板基础).dwg
- 3层框架结构条形基础宾馆结构设计施工图纸
- 6层框架结构综合楼结构施工图纸(条形基础)
- 两层框架结构会所结构设计施工图纸(条形基础)
- 6层条形基础框架结构住宅楼结构CAD施工图纸
- 3层框架结构综合楼结构CAD施工图纸(条形基础)
- 条形基础4层框架结构教学楼结构CAD施工图纸
- 框架结构条形基础住宅楼结构设计CAD施工图纸
- 2层条形基础框架结构超市结构CAD施工图纸(8度抗震)
- 3层条形基础框架结构别墅结构设计CAD施工图纸
全部评论
评论网友评论仅友表达个人看法,并不表明本站同意其观点,不得发布违反法律法规的内容!
