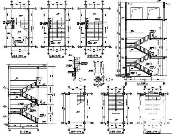
花园社区中心3层小学校建筑施工CAD图纸
- 发布时间:2022-09-18
- 评论次数:0
- 浏览次数:0
- 文件大小:3.85 MB
- 收藏次数:0
-
文件名称:
附件-995880866977977996850.rar
相关下载
- 国际花园社区建筑设计分析
- 深湾花园3层社区中心建筑施工图纸_总平面图_电梯详图
- 多层社区活动中心建筑施工CAD图纸
- 3层社区文化中心建筑施工CAD图纸
- 所街基层社区中心建筑设计
- 花园社区8层住宅楼建筑设计CAD图纸
- 小区2层社区中心电气CAD施工图纸
- 6636平米3层框架结构社区文化中心建筑施工图纸
- 居住区2层社区活动中心建筑施工图纸
- 3层知名地产风情社区中心配套建筑施工图纸
- 4层框架结构社区服务中心建筑施工图纸
- 6层中心社区住宅楼建筑结构CAD施工图纸
- 5层社区活动中心建筑CAD施工图纸
- 两层社区活动中心建筑施工CAD图纸
- 5层框架结构块瓦屋面社区中心建筑施工CAD图纸
- 中海风情社区中心配套建筑施工CAD图纸(人防工程等级)
- 框架结构4层会所建筑施工CAD图纸(社区服务中心)
- 4层框架社区卫生服务中心建筑施工CAD图纸
- 两层社区活动中心建筑施工CAD图纸
- 5层框架结构块瓦屋面社区中心建筑施工CAD图纸
全部评论
评论网友评论仅友表达个人看法,并不表明本站同意其观点,不得发布违反法律法规的内容!
