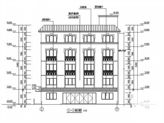
5层社区活动中心建筑CAD施工图纸
- 发布时间:2022-09-15
- 评论次数:0
- 浏览次数:0
- 文件大小:4.33 MB
- 收藏次数:0
- 
								文件名称: 附件-995888595956898587855.zip 附件-995888595956898587855.zip
								相关下载
							
						- 多层社区活动中心建筑施工CAD图纸
- 居住区2层社区活动中心建筑施工图纸
- 两层社区活动中心建筑施工CAD图纸
- 两层社区活动中心建筑施工CAD图纸
- 兴宁县3层小型社区活动中心建筑施工CAD图纸
- 张庙社区服务活动中心建筑施工CAD图纸(结施).dwg
- 社区老年活动中心建筑结构大样图
- 居住区2层社区活动中心建筑施工CAD图纸(钢筋混凝土结构)
- 住宅区社区活动中心设计方案
- 社区人防建筑施工图纸_cad
- 5层社区服务中心强弱电CAD施工图纸(新火规社区商业活动中心)
- 社区人防建筑施工图
- 3层框架结构社区居民文化活动中心电气CAD施工图纸
- 社区廉租房建筑CAD图纸
- 5层老人活动中心建筑施工图纸
- 老人活动中心建筑施工CAD图纸.dwg
- 3层现代活动中心建筑施工CAD图纸
- 3层社区文化中心建筑施工CAD图纸
- CAD住宅区社区活动中心设计方案(钢筋混凝土结构)
- 学院3层活动中心建筑扩初图纸
全部评论
						
							评论网友评论仅友表达个人看法,并不表明本站同意其观点,不得发布违反法律法规的内容!
						
						
 
	              	 
	              	 
	              	 
	              	 
	              	