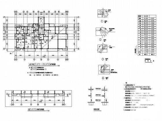
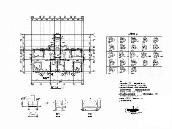
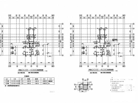
14层纯剪力墙住宅楼结构CAD施工图纸(异形柱)
- 发布时间:2022-09-15
- 评论次数:0
- 浏览次数:0
- 文件大小:2.57 MB
- 收藏次数:0
- 
								文件名称: 附件-995876575965779877770.rar 附件-995876575965779877770.rar
								相关下载
							
						- 14层异形柱纯剪力墙住宅楼结构CAD图纸
- 异形柱纯剪力墙住宅结构CAD施工图纸
- 14层异形柱纯剪力墙住宅结构CAD图纸
- 7层异形柱框架剪力墙结构住宅楼结构施工图纸
- 2层异形柱-剪力墙结构住宅楼结构CAD施工图纸
- 6层异形柱剪力墙结构住宅楼施工图纸
- 13层剪力墙结构住宅楼CAD施工图纸(异形柱框架)
- 6层异形柱剪力墙结构住宅楼CAD施工图纸
- 5层异形柱框架剪力墙结构住宅楼结构CAD图纸
- 异形柱住宅楼结构CAD施工图纸
- 异形柱-剪力墙结构设计
- 地上7层异形柱框架-剪力墙结构住宅楼结构施工图纸
- 6层异形柱框架剪力墙结构住宅楼结构CAD施工图纸
- 异形柱框架剪力墙结构住宅楼结构CAD施工图纸(6层带跃层)
- 9层异形柱框架剪力墙结构住宅楼结构CAD施工图纸(7度抗震)
- 地上6加1层异形柱框架-剪力墙结构住宅楼结构CAD施工图纸
- 11层异形柱框架剪力墙结构住宅楼结构CAD施工图纸
- 异形柱框架剪力墙全套图纸.dwg
- 异形柱、剪力墙构造详图纸cad
- 六层异形柱剪力墙结构住宅楼结构施工大样图平面图
全部评论
						
							评论网友评论仅友表达个人看法,并不表明本站同意其观点,不得发布违反法律法规的内容!
						
						
 
	              	 
	              	 
	              	