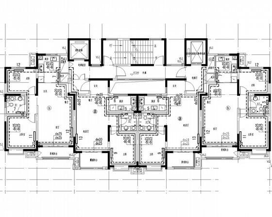
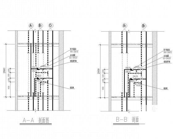
18526平米25层住宅建筑楼采暖系统设计施工大样图
- 发布时间:2021-11-27
- 评论次数:0
- 浏览次数:0
- 文件大小:4.83 MB
- 收藏次数:0
- 
								文件名称: 附件-995858879807855689585.rar 附件-995858879807855689585.rar
								住宅采暖系统图下载
							
						- 住宅楼采暖系统设计大样图
- 多层住宅建筑空调通风及采暖系统设计施工大样图
- 高层住宅建筑楼采暖系统设计CAD施工大样图(散热器连续供暖)
- 住宅楼采暖系统设计CAD大样图
- 住宅楼小区建筑采暖系统设计施工图纸
- 住宅楼建筑地板辐射采暖系统设计施工图纸
- 中高层住宅楼采暖系统设计CAD施工大样图(人防设计)
- 多层家属住宅楼采暖系统设计CAD施工图纸(分户计量采暖系统)
- 238980平米中高层住宅楼采暖系统设计施工大样图
- 多层住宅楼地热辐射采暖系统设计施工大样图
- 多栋多层住宅楼地热辐射采暖系统设计施工大样图
- 中高层住宅楼地热辐射采暖系统设计施工大样图
- 小型住宅楼地板辐射采暖系统设计施工大样图干管系统图
- 标准住宅楼地板辐射采暖系统设计施工大样图系统图
- 6层小型住宅楼地板辐射采暖系统设计施工大样图
- 6层标准住宅楼地板辐射采暖系统设计施工大样图
- 7层单元式住宅楼采暖系统设计CAD施工大样图
- 多层居住区办公建筑采暖系统设计施工大样图
- 住宅楼建筑地板辐射采暖系统设计CAD施工图纸(设计说明)
- 办公楼地板辐射采暖系统设计CAD施工大样图
全部评论
						
							评论网友评论仅友表达个人看法,并不表明本站同意其观点,不得发布违反法律法规的内容!
						
						
 
	              	 
	              	 
	              	 
	              	