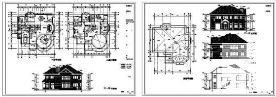
2层欧式别墅建筑设计CAD图纸(B1户型)
- 发布时间:2022-08-15
- 评论次数:0
- 浏览次数:0
- 文件大小:0.91 MB
- 收藏次数:0
- 
								文件名称: 附件-995898875008880565867.rar 附件-995898875008880565867.rar
								相关下载
							
						- 2层欧式别墅建筑设计CAD图纸(A3户型)
- 2层B1型别墅建筑设计文本(效果施工图纸)
- 高档别墅建筑设计CAD图纸(B1型)
- 2层欧式别墅建筑设计CAD图纸
- 2层欧式别墅建筑设计CAD图纸
- 2层欧式别墅建筑设计CAD图纸
- 2层欧式独立别墅建筑设计CAD图纸
- 2层欧式别墅建筑设计CAD图纸
- 2层欧式别墅建筑设计CAD图纸
- 2层别墅(B1型)建筑CAD图纸
- 3层独栋欧式风格别墅建筑设计
- 欧式风格4层别墅建筑设计方案
- 欧式小别墅建筑设计方案
- 欧式豪华别墅建筑设计方案
- 3层双拼欧式别墅建筑设计方案
- 板式多层一梯两户B1户型CAD图纸
- 2层欧式别墅建筑CAD施工图纸(Y1户型)
- 2层欧式别墅建筑CAD图纸(Y2户型)
- 2层欧式别墅建筑CAD图纸(Y3户型)
- 3层欧式别墅建筑CAD图纸(C1户型)
全部评论
						
							评论网友评论仅友表达个人看法,并不表明本站同意其观点,不得发布违反法律法规的内容!
						
						
 
	              	 
	              	 
	              	