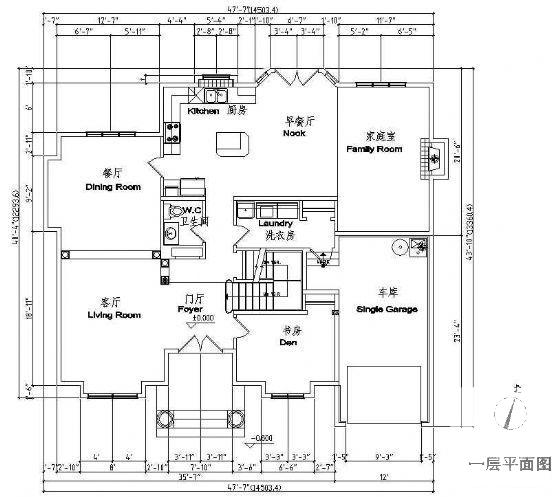
2层欧式别墅建筑设计CAD图纸
- 发布时间:2022-08-15
- 评论次数:0
- 浏览次数:0
- 文件大小:0.7 MB
- 收藏次数:0
-
文件名称:
附件-995898875968705087997.rar
相关下载
- 2层欧式别墅建筑设计CAD图纸
- 2层欧式别墅建筑设计CAD图纸
- 2层欧式独立别墅建筑设计CAD图纸
- 2层欧式别墅建筑设计CAD图纸
- 2层欧式别墅建筑设计CAD图纸
- 3层独栋欧式风格别墅建筑设计
- 欧式风格4层别墅建筑设计方案
- 欧式小别墅建筑设计方案
- 欧式豪华别墅建筑设计方案
- 3层双拼欧式别墅建筑设计方案
- 欧式别墅建筑CAD图纸
- 欧式别墅建筑CAD图纸
- 欧式别墅建筑CAD图纸
- 2层欧式别墅建筑设计CAD图纸(经典大方)
- 2层欧式别墅建筑设计CAD图纸(B1户型)
- 2层欧式别墅建筑设计CAD图纸(A3户型)
- 2层欧式别墅建筑设计CAD图纸(精美大方)
- 2层欧式别墅建筑设计CAD图纸(标注详细)
- 欧式新农村3层独栋别墅建筑设计施工图(全套CAD图纸)
- 欧式3层独栋别墅建筑设计CAD施工图纸.dwg
全部评论
评论网友评论仅友表达个人看法,并不表明本站同意其观点,不得发布违反法律法规的内容!
