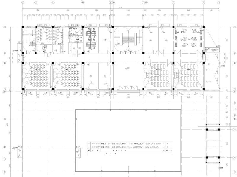
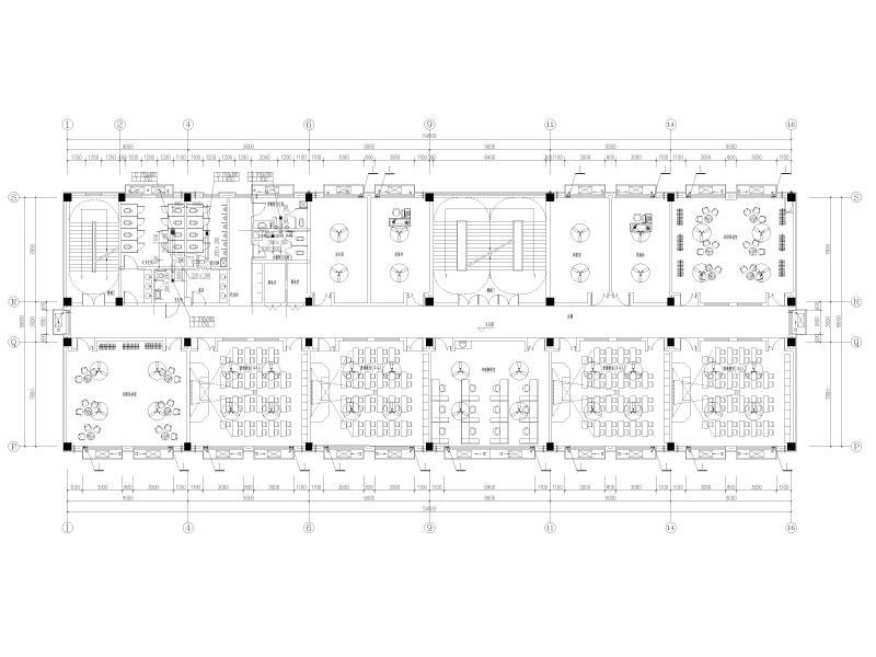
中学新建教学楼工程暖通施工图纸cad平面图
- 发布时间:2022-07-06
- 评论次数:0
- 浏览次数:0
- 文件大小:4.28 MB
- 收藏次数:0
- 
								文件名称: 附件-996797760559865758.dwg 附件-996797760559865758.dwg
								相关下载
							
						- 新建教学楼暖通施工图纸cad平面图
- 新建教学楼暖通施工图纸cad平面图
- 中学教学楼暖通施工图纸cad平面图及立面图
- 中学教学楼、宿舍及食堂暖通施工图纸cad平面图
- 4层新建幼儿园工程暖通施工图纸cad平面图
- 新建教学楼3#教职工宿舍暖通施工图纸cad平面图
- 新建教学楼教职工5#宿舍暖通施工图纸cad平面图
- 新建教学楼教职工6#宿舍暖通施工图纸cad平面图
- 新建教学楼教职工7#食堂暖通施工图纸cad平面图
- 5层中学新建教学楼弱电智能化施工图纸
- 中学食堂暖通施工图纸cad平面图
- 中学校园升级改造工程暖通施工图纸cad平面图
- 5层长城中学新建教学楼建筑施工CAD大样图
- 新建幼儿园暖通施工图纸cad平面图
- 中学新建校区修改方案
- 12928平米中学新建校区工程总平面建筑施工图纸
- 漕河泾新建办公楼暖通工程CAD施工图纸
- 4层小学新建教学楼工程电气施工图纸
- 中学教学楼
- 道路工程暖通施工图纸cad平面图
全部评论
						
							评论网友评论仅友表达个人看法,并不表明本站同意其观点,不得发布违反法律法规的内容!
						
						
 
	              	 
	              	 
	              	 
	              	 
	              	