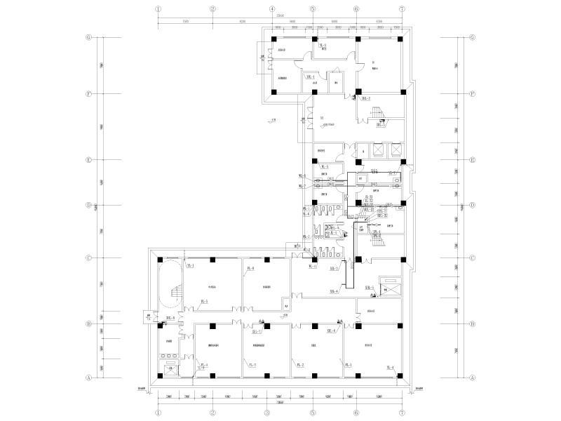
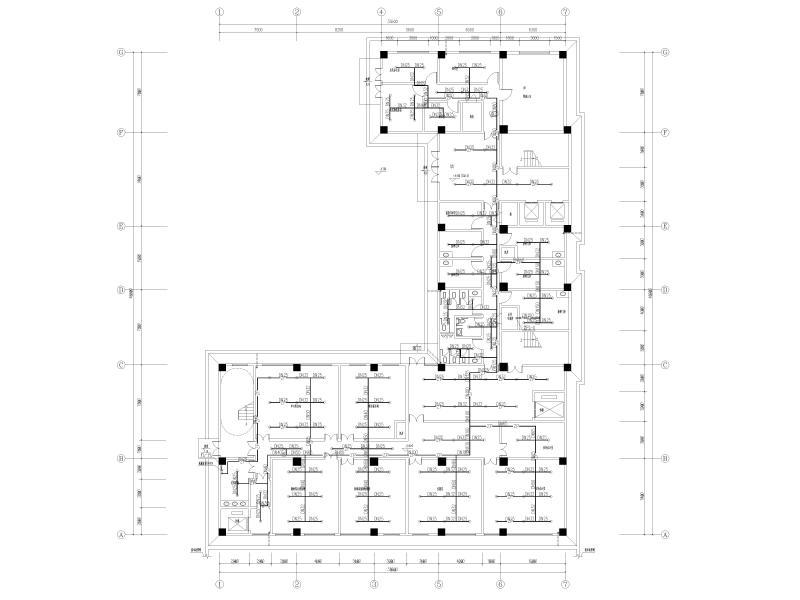
11层疾病预防控制中心给排水施工图纸平面图
- 发布时间:2022-02-20
- 评论次数:0
- 浏览次数:0
- 文件大小:4.12 MB
- 收藏次数:0
-
文件名称:
附件-996599878778966970.rar
疾病预防中心给排水施工图下载
- 县疾病预防中心平面CAD图纸(设计说明)
- 8000平米疾病预防控制中心空调施工图纸
- 疾病预防控制中心冷库设计施工图纸(11张)
- 6层框架结构疾病预防控制中心结构CAD施工图纸
- 疾病预防控制中心冷库设计CAD施工图纸
- 疾病预防控制中心业务综合楼暖通CAD施工方案图纸
- 疾病预防控制中心业务综合楼初步设计说明
- 疾病预防控制中心2层砖工程结施cad图纸
- 疾病预防控制中心综合业务楼幕墙设计图纸.dwg
- 人民医院及疾病预防控制中心方案.pdf
- 人民医院及疾病预防控制中心方案文本
- 16层框剪结构疾病预防控制中心结构CAD施工图纸(CFG桩)
- 上7层疾病预防控制中心业务楼电气CAD施工图纸(火灾自动报警)
- 县疾病控制中心办公楼给排水CAD施工图纸
- 6层疾病防治中心建筑给排水CAD施工图纸
- 6层疾病防治中心建筑给排水CAD施工图纸
- 疾病控制中心电气CAD施工图纸
- 防疫站疾病预防控制中心5层综合楼建筑扩初图纸(卫生间大样图)
- 防疫站疾病预防控制中心5层综合楼建筑扩初初设大样图
- 1700平方米4层疾病控制中心施工图纸
全部评论
评论网友评论仅友表达个人看法,并不表明本站同意其观点,不得发布违反法律法规的内容!
