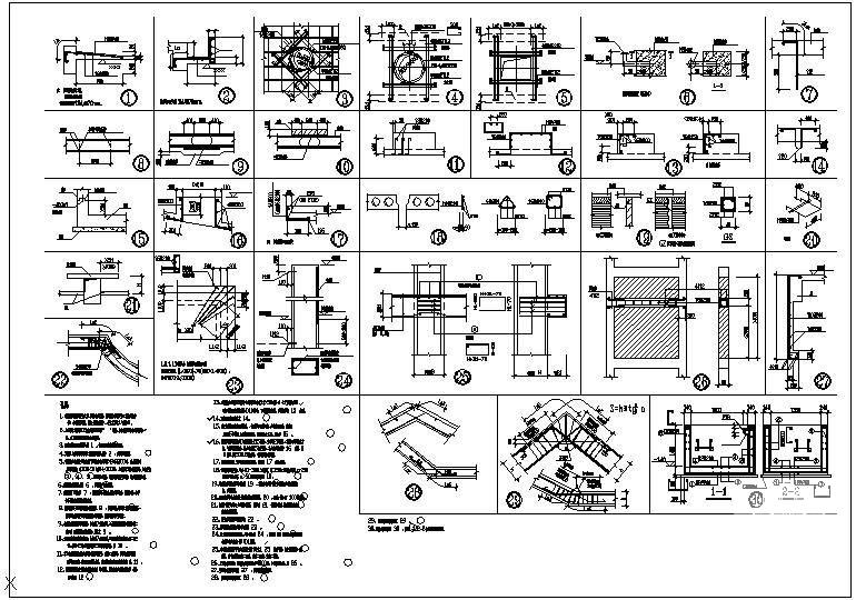
常用大样节点构造设计详图纸
- 发布时间:2022-02-20
- 评论次数:0
- 浏览次数:0
- 文件大小:0.14 MB
- 收藏次数:0
-
文件名称:
附件-996056756756957095.rar
常用大样节点图下载
全部评论
评论网友评论仅友表达个人看法,并不表明本站同意其观点,不得发布违反法律法规的内容!
附件-996056756756957095.rar