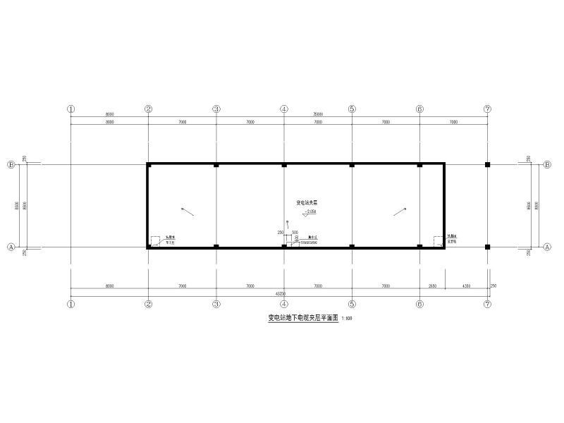
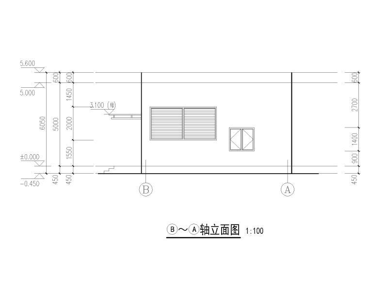
单层变电站施工方案图纸平面图及剖面图,立面图
- 发布时间:2022-02-20
- 评论次数:0
- 浏览次数:0
- 文件大小:2.26 MB
- 收藏次数:0
-
文件名称:
附件-996569788087858685.rar
单层变电站施工方案图下载
- 单层框架结构变电站结构CAD施工图纸2017.dwg
- 单层变电站及消防水池结构施工CAD图纸2020
- 变电站电气cad系统图
- 园区变电站混凝土框架施工方案图纸
- 变电站间间隔施工方案
- 110kv降压变电站施工方案
- 单层配套商业建筑施工方案图纸平面图及剖面图
- 单层CT厂房施工方案图纸CAD平面图及剖面图
- 变电站工程施工现场用水用电施工方案cad平面布置图
- 别墅外观方案-单层别墅
- 变电站控制楼建筑施工图(英文大样图,共23张)
- 单层门式刚架结构厂房结构施工方案大样图
- 单层砖混库房混凝土加固改造施工方案大样图
- 单层砌体小型机房混凝土结构施工方案大样图
- 单层砖混结构混凝土加固结构施工方案大样图
- 单层砌体木屋架加固改造施工方案大样图
- 单层彩钢板板房结构CAD施工方案图纸(屋顶平面图)
- 单层钢框架停车棚结构CAD施工方案图纸(基础平面图)
- 单层工业厂房车间结构施工方案大样图(CAD)
- 双跨厂房单层门式钢架结构施工方案大样图(CAD)
全部评论
评论网友评论仅友表达个人看法,并不表明本站同意其观点,不得发布违反法律法规的内容!
