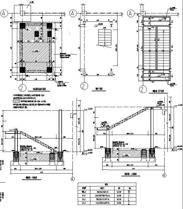
单层砖混结构混凝土加固结构施工方案大样图
- 发布时间:2021-12-08
- 评论次数:0
- 浏览次数:0
- 文件大小:1.35 MB
- 收藏次数:0
-
文件名称:
附件-996995860686056775.dwg
混凝土结构加固施工下载
- 混凝土结构工程加固施工及方案
- 混凝土结构工程加固施工方案
- 浅谈混凝土结构的改造与加固
- 火灾后混凝土结构的加固
- 混凝土结构厂房腐蚀鉴定及加固
- 浅析混凝土结构的维护及加固
- 混凝土结构工程加固方案的优化
- 混凝土梁柱结构加固设计施工图纸
- 浅谈混凝土结构工程加固施工方案
- 论混凝土结构工程加固施工及方案的优选
- 工程柱体开洞加固施工方案(混凝土结构)
- 建筑混凝土结构的加固补强施工
- 浅谈碳纤维加固混凝土结构施工工艺.pdf
- 碳纤维布加固混凝土结构施工技术.pdf
- 碳纤维加固混凝土结构施工工艺.doc
- 混凝土结构加固方案的设计与优选
- 混凝土结构加固节点详细设计CAD图纸
- 混凝土梁柱加固结构设计说明
- 混凝土梁粘钢加固大样
- 混凝土加固设计说明cad
全部评论
评论网友评论仅友表达个人看法,并不表明本站同意其观点,不得发布违反法律法规的内容!
