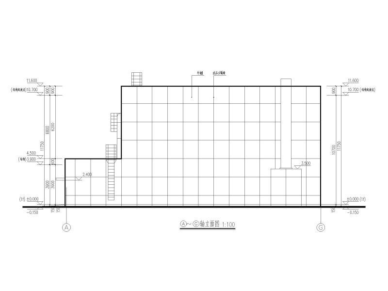
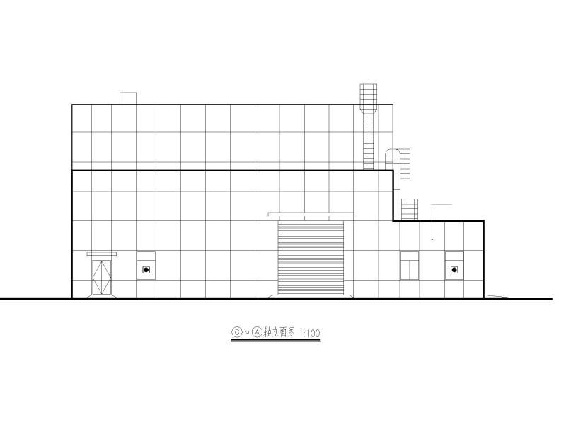
单层CT厂房施工方案图纸CAD平面图及剖面图
- 发布时间:2024-01-02
- 评论次数:0
- 浏览次数:0
- 文件大小:0.61 MB
- 收藏次数:0
-
文件名称:
附件-996887797985587768.dwg
相关下载
- 框架结构工业CT厂房结构施工图纸cad平面布置图及剖面图
- 单层配套商业建筑施工方案图纸平面图及剖面图
- 工业CT厂房CAD图纸弱电
- 3层厂房施工方案图纸CAD平面图及剖面图
- 单层变电站施工方案图纸平面图及剖面图,立面图
- 泵道厂房施工方案大样图CAD平面图及剖面图,立面图
- 3层配套商业建筑施工方案图纸平面图及剖面图
- 坡屋顶配套商业施工方案图纸平面图及剖面图
- 多层养老院建筑施工方案图纸平面图及剖面图
- 高层疾控中心施工方案图纸平面图及剖面图
- 多层保健楼施工方案图纸平面图及剖面图
- 高层医院建筑施工方案图纸平面图及剖面图
- 高层医院住院楼施工方案图纸平面图及剖面图
- 中学宿舍施工方案图纸CAD平面图及剖面图
- 单层框架结构地下车库电气施工图纸cad平面图及剖面图
- 单层企业传达室及大门建筑设计施工图纸_平面图_剖面图_详图
- 7层中学建筑方案文本平面图及剖面图
- 国内市工业CT检测间工程系列施工方案(剪力墙结构)
- 单层厂房课程设计(基础CAD平面图)
- 单层临时病房及配套服务建筑施工大样图平面图及剖面图,立面图
全部评论
评论网友评论仅友表达个人看法,并不表明本站同意其观点,不得发布违反法律法规的内容!
