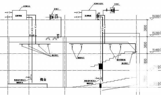
17100平米5层学校实验中心空调通风设计施工大样图
- 发布时间:2021-11-25
- 评论次数:0
- 浏览次数:0
- 文件大小:4.41 MB
- 收藏次数:0
-
文件名称:
附件-995858779089959799599.rar
学校施工设计下载
- 5层学校实验中心空调通风设计CAD施工大样图
- 国际实验学校食堂通风
- 多层实验科研建筑空调通风系统设计CAD施工大样图(净化空调)
- 23层实验中心大厦空调通风及防排烟系统设计施工图纸
- 高层实验中心大厦空调通风及防排烟系统设计施工图纸
- 海军总医院实验中心净化空调及通风系统施工CAD图纸(机房设计)
- 3400平米多层实验科研建筑空调通风系统设计施工大样图
- 国际实验学校食堂空调.dwg
- 4层学校宿舍楼空调通风设计CAD施工大样图
- 实验学校道路建设工程大样图
- 医院实验室空调通风施工图纸
- 洗浴中心空调通风设计CAD图纸
- 省级疾控中心实验室暧通全面施工CAD大样图(舒适性空调设计、防排烟设计、通风设计)
- 医院中心血站实验室空调通风及防排烟系统设计施工图纸
- 中心空调通风图纸.dwg
- 20层实验室通风及空调平面.dwg
- 8718平米2层游客中心空调通风设计施工大样图
- 6770平米4层科研中心空调通风设计施工大样图
- 2层生活购物中心空调通风设计施工大样图
- 多层行政中心空调通风系统设计施工大样图
全部评论
评论网友评论仅友表达个人看法,并不表明本站同意其观点,不得发布违反法律法规的内容!
