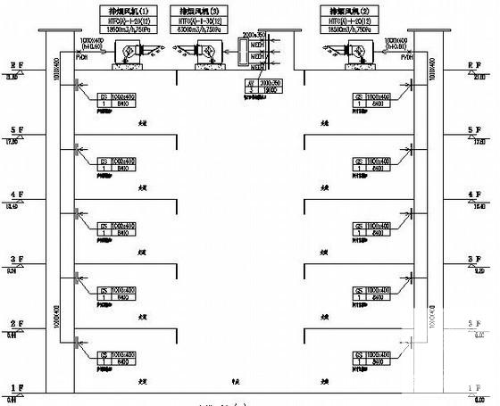
51960平米5层大学科研中心空调通风设计施工大样图
- 发布时间:2021-11-25
- 评论次数:0
- 浏览次数:0
- 文件大小:4.92 MB
- 收藏次数:0
- 
								文件名称: 附件-995858769656578089607.rar 附件-995858769656578089607.rar
								相关下载
							
						- 5层大学科研中心空调通风设计施工大样图
- 3层科研中心空调通风图纸
- 6770平米4层科研中心空调通风设计施工大样图
- 5层知名大学科研楼空调通风设计CAD施工图纸
- 多层科研中心空调通风及防排烟系统设计施工CAD图纸(节能设计)
- 多层实验科研建筑空调通风系统设计CAD施工大样图(净化空调)
- 3400平米多层实验科研建筑空调通风系统设计施工大样图
- 高层科研楼空调通风系统设计CAD施工大样图(正压送风系统)
- 22层科研办公楼空调通风设计CAD施工大样图
- 科研大楼通风空调系统设计CAD施工大样图
- 5层科研教育中心空调通风防排烟加压送风系统设计施工大样图(机房大样图)
- 3层大学学术中心及展览馆空调通风CAD施工大样图
- 电子科研楼空调通风设计CAD施工图纸(净化空调系统)
- 5层科研教育中心空调通风防排烟加压送风系统设计CAD施工图纸(机房图纸)
- 上7层科研楼空调通风图纸.dwg
- 5层17600平米大学服务中心空调通风施工图纸
- 洗浴中心空调通风设计CAD图纸
- 科研楼暖通空调系统施工大样图
- 中心空调通风图纸.dwg
- 科研办公楼空调通风设计施工图纸(知名设计院)
全部评论
						
							评论网友评论仅友表达个人看法,并不表明本站同意其观点,不得发布违反法律法规的内容!
						
						
 
	              	 
	              	 
	              	 
	              	