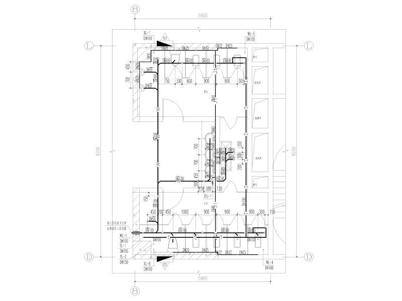
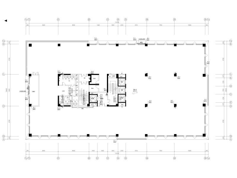
科技产业中心给排水施工大样图平面图及原理图
- 发布时间:2022-02-20
- 评论次数:0
- 浏览次数:0
- 文件大小:12.75 MB
- 收藏次数:0
-
文件名称:
附件-996570688555558999.rar
科技中心给排水施工图下载
- 4层科技园区中心建筑给排水CAD施工图纸
- 5层石油科技中心给排水CAD施工图纸.dwg
- 5层长江大学石油科技中心给排水CAD施工图纸.dwg
- 上海科技中心空调施工图纸(18张)
- 现代风格大型科技中心建筑CAD施工图纸
- 综合型科技研发中心大楼给排水图纸(消防炮泡沫灭火)
- 4层科技园区中心建筑给排水CAD图纸
- 科技发展创业中心给排水设计CAD图纸(自动喷淋系统图)
- 海高层科技园给排水施工图纸
- 科技中心项目型钢柱深化设计图纸
- 科技中心机房电气设计.dwg
- 科技培训中心暖通施工CAD图纸
- 9层德胜科技孵化中心给排水及消防工程施工设计CAD图纸(,27张)
- 科技大厦给排水CAD施工方案图纸
- 凤凰科技文化广场文体中心_商业建筑施工图纸
- 科技产业中心暖通施工图纸平面图及排烟系统图
- 科技中心办公楼带住宅楼CAD施工图纸
- 奥林匹克体育科技中心钢桁架屋盖结构CAD施工图纸
- 奥林匹克体育科技中心钢结构屋盖结构CAD施工图纸
- 孵化中心科技楼电气CAD施工图纸(2018最新)
全部评论
评论网友评论仅友表达个人看法,并不表明本站同意其观点,不得发布违反法律法规的内容!
