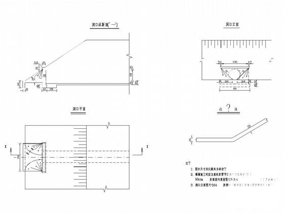
钢筋混凝土圆管涵设计图纸
- 发布时间:2021-12-11
- 评论次数:0
- 浏览次数:0
- 文件大小:1.15 MB
- 收藏次数:0
- 
								文件名称: 附件-995798860880570758.rar 附件-995798860880570758.rar
								钢筋混凝土圆管涵下载
							
						- 钢筋混凝土圆管涵设计CAD图纸
- 钢筋混凝土圆管涵通用设计CAD图纸
- 钢筋混凝土圆管涵构造图纸
- 盖板涵、圆管涵涵洞CAD图纸
- 公路盖板涵、圆管涵、石拱涵通用图纸.dwg
- 公路涵洞设计CAD图纸(圆管涵、盖板涵)
- 圆管涵布置CAD图纸
- 倒虹吸圆管涵设计CAD图纸
- 倒虹吸圆管涵设计CAD图纸
- 钢筋砼圆管涵斜圆管钢筋数量表
- 一级公路钢筋混凝土箱涵及圆管涵施工CAD图纸设计(38张)
- 高速公路涵洞通用图纸(盖板涵圆管涵).
- 盖板,圆管涵,箱涵标准图纸.dwg
- 钢筋混凝土圆管涵CAD施工方案图纸设计
- 整体式钢筋混凝土圆管涵CAD施工方案图纸设计
- 钢筋混凝土圆管涵施工通用图纸设计.dwg
- 多孔径钢筋混凝土涵洞设计套图纸(26张圆管涵盖板涵).
- 钢筋混凝土圆管涵施工方案通用CAD大样图设计
- 互通区圆管涵CAD图纸
- 钢筋混凝土圆管涵标准图纸全套图纸.dwg
全部评论
						
							评论网友评论仅友表达个人看法,并不表明本站同意其观点,不得发布违反法律法规的内容!
						
						
 
	              	 
	              	 
	              	