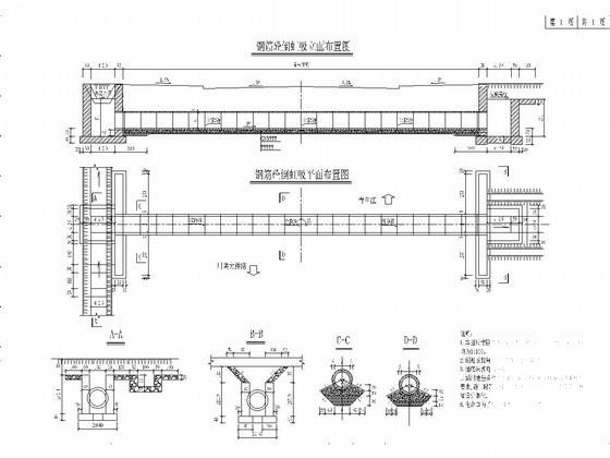
倒虹吸圆管涵设计CAD图纸
- 发布时间:2023-12-28
- 评论次数:0
- 浏览次数:0
- 文件大小:0.33 MB
- 收藏次数:0
-
文件名称:
附件-995798859989758808.rar
相关下载
- 倒虹吸圆管涵设计CAD图纸
- 高速公路圆管涵倒虹吸图纸.
- 预制混凝土圆管竖井式倒虹吸
- 预制混凝土圆管竖井式倒虹吸
- 直径1米圆管涵及倒虹吸设计CAD图纸
- 高速公路圆管涵、倒虹吸管通用图纸(甲级院).dwg
- 国道连接线道路涵洞(圆管涵、倒虹吸)施工大样图.
- 国道连接线道路涵洞施工大样图(圆管涵、倒虹吸).
- 公路道路,桥梁,涵洞,横断面图,圆管涵,倒虹吸,盖板涵,全套cad图纸
- 1.25m倒虹吸圆管涵管节设计图纸
- 绕城公路涵洞设计CAD大样图175张(盖板圆管倒虹吸通道)
- 倒虹吸细部结构CAD图纸
- 预制混凝土圆形曲线式倒虹吸
- 预制混凝土圆形曲线式倒虹吸
- 预制混凝土圆管竖井式倒虹吸结构设计CAD详大样图(细部)
- 盖板涵、圆管涵涵洞CAD图纸
- 1-1.0m倒虹吸设计图纸
- 公路盖板涵、圆管涵、石拱涵通用图纸.dwg
- 公路涵洞设计CAD图纸(圆管涵、盖板涵)
- 圆管涵布置CAD图纸
全部评论
评论网友评论仅友表达个人看法,并不表明本站同意其观点,不得发布违反法律法规的内容!
