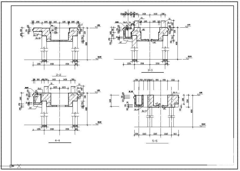
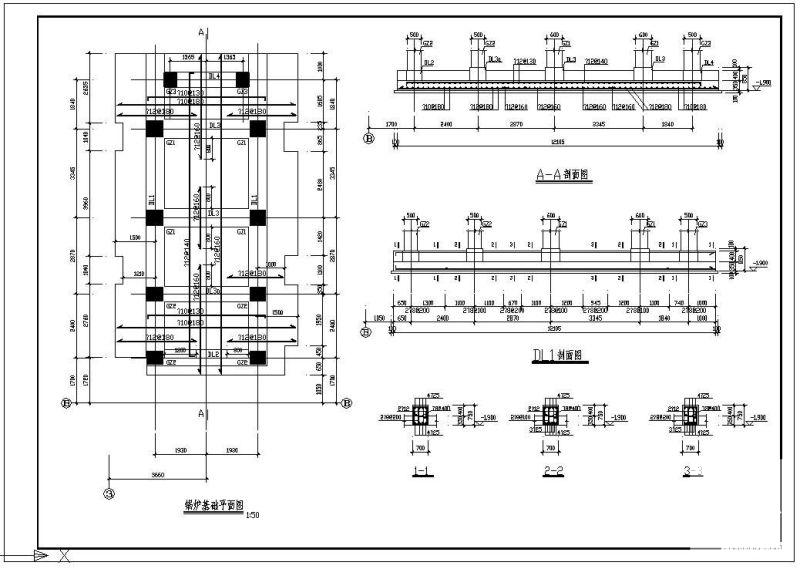
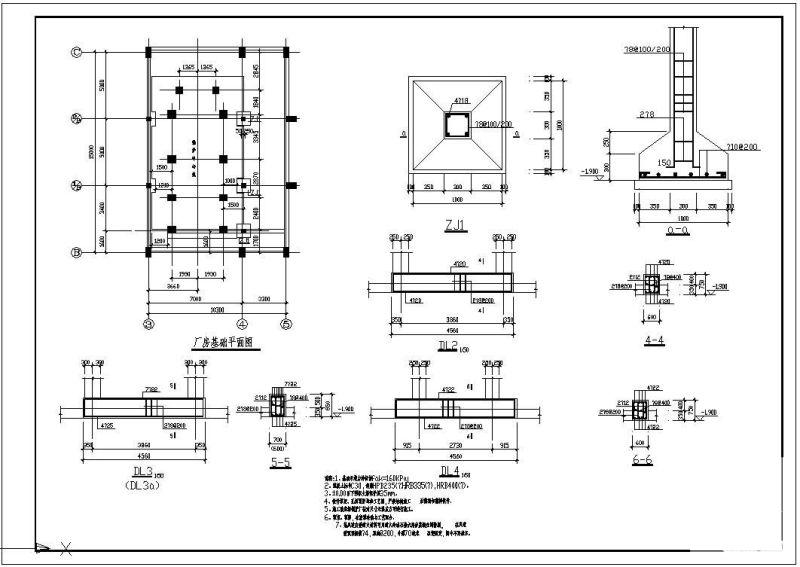
10吨链条工业锅炉基础结构设计节点构造详图纸平面图
- 发布时间:2021-12-16
- 评论次数:0
- 浏览次数:0
- 文件大小:0.48 MB
- 收藏次数:0
-
文件名称:
附件-995795786998505995.rar
链条工业锅炉构造图下载
- 10吨链条工业锅炉基础结构设计节点构造CAD详图纸.dwg
- 工业锅炉房设备安装设计图纸.dwg
- HB3210以及HB4210链条式和刀臂式刀库设备基础节点构造CAD详图纸
- 煤矿工业锅炉房及制冷机房工程施工方案
- 花瓶形桥墩构造设计钢筋图纸CAD构造图
- 立交盖梁加固构造cad图纸,平面布置图和加固构造图
- 1-6m正交小桥设计图纸构造图及防撞护栏钢筋构造图
- 单洞双线隧道工程施工图纸设计构造图,排水沟构造图
- 跨河小桥设计图纸构造图,剖面图,总体布置图
- 309.064米刚架拱桥施工大样图构造图,平面图
- II级公路涵洞布置图构造图,盖板配筋图
- 广场休闲花架施工详图纸构造图及剖面图,立面图
- 挡土墙节点构造详图纸大样图及剖面图,立面图
- 常规桥梁构造和钢筋cad设计图纸_常规桥梁构造设计图
- 47m钢箱梁人行天桥cad施工图设计,主梁构造图和桥墩桩基钢筋构造图
- 6×14m简支板桥大样图构造图及桥台配筋图,布置图
- 钢楼梯节点构造详图纸大样图
- 承式拱桥设计图纸支座构造图
- 钢筋混凝土箱涵标准图纸构造图
- 老虎窗结构构造详图纸平面图
全部评论
评论网友评论仅友表达个人看法,并不表明本站同意其观点,不得发布违反法律法规的内容!
