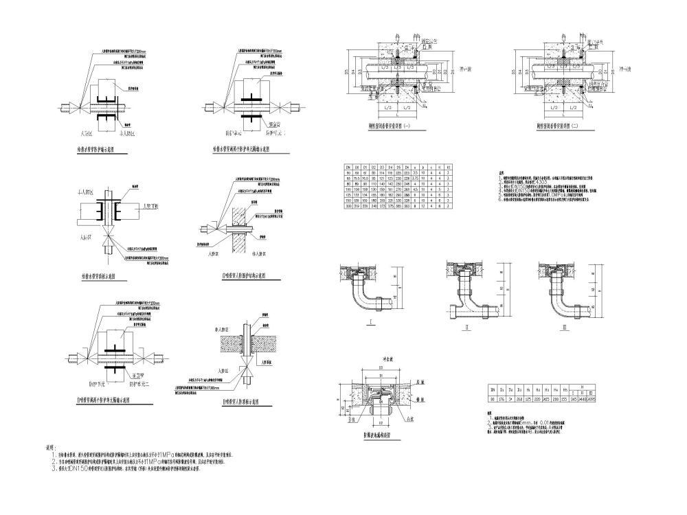
会展总部防空地下室给排水施工图纸
- 发布时间:2021-12-11
- 评论次数:0
- 浏览次数:0
- 文件大小:1.66 MB
- 收藏次数:0
- 
								文件名称: 附件-996009589975590675.dwg 附件-996009589975590675.dwg
								防空地下室给排水下载
							
						- 会展中心防空地下室电气施工大样图
- 会展总部人防通风施工大样图
- 2层防空地下室给排水CAD施工图纸
- 广场防空地下室给排水消防CAD施工方案图纸
- 会展总部基地地下车库及商业建筑施工CAD大样图.dwg
- 会展总部基地机房系统CAD图纸、平面CAD图纸及大样CAD图纸
- 防空地下室人防给排水设计_设备安装大样
- 防空地下室楼梯CAD节点图纸集
- 会展总部基地项目人防建筑_车库平面图_战时平面图
- 3层公共建筑及防空地下室给排水CAD施工图纸
- 国内高层住宅楼给排水设计CAD施工图纸(防空地下室通风)
- 5层办公楼给排水CAD施工方案图纸(防空地下室设计)
- 国内高层住宅楼给排水CAD施工方案图纸(防空地下室通风)
- 4万平米2层防空地下室给排水CAD施工大样图
- 3层公共建筑及防空地下室给排水CAD施工大样图
- 6级甲类防空地下室施工图纸
- 防空地下室人防电气施工图纸(人防大样)
- 中铁防空地下室暖通施工大样图纸平面图
- 小区防空人防地下室结构施工图纸2019
- 6级甲类防空地下室CAD施工图纸
全部评论
						
							评论网友评论仅友表达个人看法,并不表明本站同意其观点,不得发布违反法律法规的内容!
						
						
 
	              	 
	              	 
	              	 
	              	 
	              	